Laborgebäude Novartis Campus, Basel
Internationaler Studienauftrag auf Einladung mit Generalplanerofferte 2004
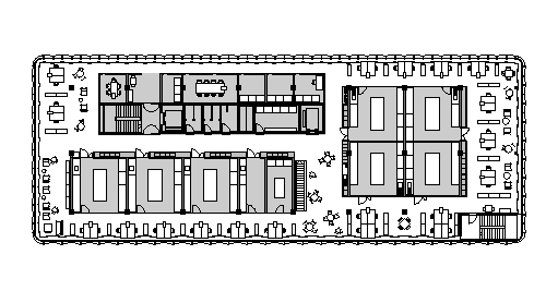
Das Laborgebäude ist Teil einer 'Forschungsstadt', die auf dem Novartis-Campus in Basel neu entsteht.
Die Innovation unseres Beitrags besteht in der räumlichen Trennung von Schreibarbeitsplätzen und Experimentierzonen. Die frei im Grundriss plazierten Blöcke der eigentlichen Labors scheiden verschiedene Bereiche für Büroarbeitsplätze aus. Dank der geringen Raumtiefe dieser Zonen geniessen alle Arbeitsplätze direktes Tageslicht aber auch kurze Kommunikationswege wie im Open Space Office.





