Gartenpavillon

Studienauftrag auf Einladung 2001

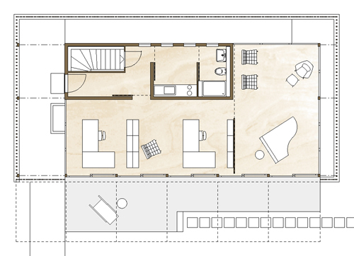
Die Bauherrschaft wünschte sich Entwürfe für einen Gartenpavillon, zur Nutzung als Wohnraumerweiterung oder zeitweise auch als Büro. Ein nicht mehr benötigtes Wohnhaus stand dafür zur Disposition.

In unserem Vorschlag wird das bestehende Gebäude bis auf das Untergeschoss rückgebaut und auf dieses ein Pavillon in Leichtbauweise aufgesetzt. Dessen mehrheitlich verglaste Fassaden sind mit einer Umhüllung aus feingliedrigen Holzrosten versehen, welche auf der Hauptfront wie Garagetore aufgeklappt werden können.

Bei Nichtgebrauch würden die Klapptore geschlossen, das Gebäude würde sich rundherum als ein etwas zu gross geratener 'Gartenschopf ohne Eingang' darstellen.

2001

Stalder & Buol によるその他のプロジェクト 

Mehrfamilienhaus Bristenstrasse, Zürich
Reitanlage Kolbenhof, Zürich
Mehrfamilienhaus Brunngasse, Männedorf
スイス
Buchhandlung 'Never Stop Reading', Zürich
Wohnüberbauung, Herrliberg