Bankfiliale Raiffeisen, Winterthur
Projektwettbewerb auf Einladung 2009
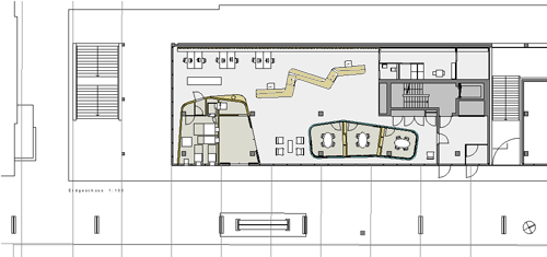
Einbau einer Bankfiliale in einen modernen Geschäftshausneubau. Das verglaste Erdgeschoss wird grundsätzlich offen belassen. Zwei freistehende Körper und eine geschwungene Theke werden so in den Grundriss eingepasst, dass alle notwendigen Bereiche in ihren funktionalen Bezügen festgelegt sind.
Die Fassadenverglasung wird zweischichtig mit einem dem klassischen Tüllvorhang entlehnten Muster bedruckt. Im Vorbeigehen entsteht durch die Überlagerung der Strukturen ein sich ständig ändernder Changeant-Effekt. Aus dem Bedürfnis nach Diskretion und Blendschutz entsteht ein identitätsstiftender, zeichenhafter Auftritt zum Platz hin.
- 年
- 2009




