Werner-Heisenberg-Gymnasium
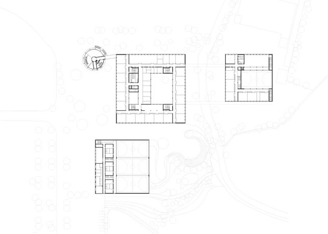
Drei quadratische Baukörper besetzen Baufelder im landschaftlich geprägten Kontext. Dadurch entsteht ein reizvoller Dialog mit den pavillionartigen, präzisen Gebäuden. Im Eingangsbereich behält der bestehende Rundbau mit neuer Nutzung eine zeichenhafte Bedeutung. Das Ensemble stellt einen Filter dar zwischen Siedlungsstruktur und Landschaftsraum.
Der mittlere Baukörper bildet als eigentliches Schulhaus das viergeschossige Zentrum der Anlage, Sporthalle und Ganztagesbetreuung werden als zweigeschossige „Satelliten“ mit eigenem Charakter ausgebildet. Das Gebäude der Ganztagesbetreuung wird ergänzt durch eine Einfachsporthalle, so dass vielfältige Sportaktivitäten das Nachmittagsprogramm erweitern können. Die Pausenflächen werden zoniert in kontemplative und aktive Bereiche, parkartige Wegeverbindungen zwischen den Bauteilen und den Freisportflächen machen die besonderen Außenräume erlebbar. In direkter Verbindung zur Pausenhalle wird der Veranstaltungssaal positioniert. Zusammen mit dem Musikraum entsteht ein zweigeschossiger Raumverbund mit ansteigendem Gestühl, der somit vielfältige Nutzungen ermöglicht. Eine ringartige Erschließung in den Obergeschossen erleichtert die Orientierung und schafft kurze Wege für die „Wanderklassen“. Im 1. und 2. OG sind Klassenzimmer angeordnet, im 3.OG fördert die Kombination der „technischen“ Naturwissenschaften einen fächerübergreifenden Unterricht mit Synergieeffekten. Verwaltung und Lehrerbereich sind als enger Verbund im 1.OG zentral angeordnet. Mit der Dreifachsporthalle sind Hausmeisterwohnung und ein Konditionsraum untergebracht. Die Spielebene ist barrierefrei erreichbar. Der Ganztagesbereich wird über eine Brücke im 1.OG erreicht. Dieser Bereich soll vom Schulgebäude getrennt - „Wohnqualität“ auch mit den Außenanlagen vermitteln, hier soll Lernen, Essen, Kontemplation, Chillen und Aktivität ermöglicht werden.
In Anlehnung an das vorhandene Landschaftsschutzgebiet im Bereich des Mühlbachs und der markanten Baumkulisse werden die Farben eines goldenen Herbstwaldes in der Außenfassade interpretiert. Motorisch angetriebene Vertikal-Großlamellen aus Aluminiumrahmen mit Streckmetallfüllung werden an Betonfertigteilbalkonen montiert. Die Lamellen werden dem Sonnenstand entsprechend nachgeführt, so dass ein wechselndes, spannungsvolles Wahrnehmungsbild entsteht. Die Maschenweite des Streckmetalls ist abgestimmt auf eine optimale Reduzierung der direkten Sonneneinstrahlung und soll dabei weitgehend ungehinderte Sicht nach außen bieten. Zusätzlich erfüllt das Streckmetall eine gute Wärmereflexion und eine gezielte Lichttransmission nach innen. Durch die grundsätzliche Anordnung der Balkone auf Brüstungshöhe wird der Eintrag von hohem Licht in alle Räume gewährleistet. Jeder Raum kann individuell gesteuert werden.
Aufgabe
Neubau von Unterrichtsräumen, Fachklassen, Verwaltung und Dreifachsporthalle, Ganztagesbetreuung mit Aufenthaltsräumen, Mensa und Einfachsporthalle
Bauherr
Zweckverband Staatliches Gymnasium Garching
Leistungsumfang
LPH 1-9 HOAI
Erstellung Brandschutzkonzept
Kenndaten
NF 12.000 m²
Ausführungszeit
Wettbewerb 1. Preis 10l2010
Planungsbeginn 05l2011
Ausführung 1.BA 03l2012 - 09l2013
Ausführung 2.BA 08l2013 - 09l2014
- 年
- 2014

















