Kammerhauptverwaltung Handwerkskammer Niederbayern-Oberpfalz
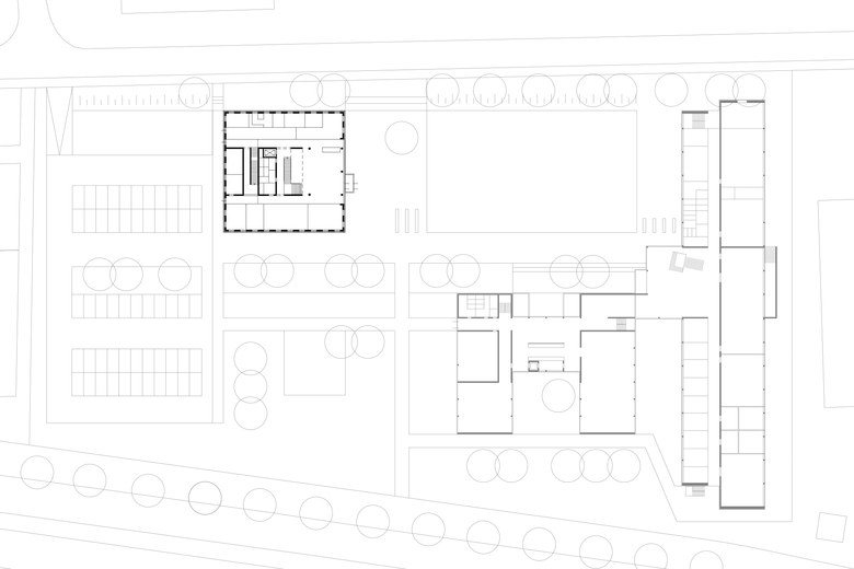
Ziel der Neustrukturierung ist die clusterartige Definition von Baufeldern mit bestehenden und neuen Bebauungen, die Wege und Plätze bilden. Diese dienen der internen Erschließung des Ensembles und als qualitätsvoller Außenraum für die Nutzungen. Grundsätzlich orientiert sich die Gebäudehöhe an der umgebenden Bebauung, das zentrale Gebäude der Kammerhauptverwaltung dominiert jedoch mit der fünfgeschossigen Ausbildung das Ensemble. Dies entspricht der Bedeutung der Nutzung, das Gebäude übernimmt nach Abriss der alten Hauptverwaltung auch die zeichenhafte Funktion im städtebaulichen Kontext an der Straubinger-Straße. Das neue Schulungsgebäude und die neue Verwaltung bilden an der Ditthornstraße eine zentrale Plaza. Hier befinden sich die neuen Hauptzugänge für das Verwaltungsgebäude und das zentrale Schulungsgebäude. Von dieser erreicht man ebenso den inneren Campus, der als zentraler Freiraum alle Gebäude verknüpft.
Die Besucherstellplätze werden kompakt auf einem separaten Parkplatz im östlichen Bereich angeordnet. Die Ditthornstraße wird mit straßenbegleitendem Grün aufgewertet.
In einem kompakten, quadratischen Gebäudekörper mit 25 m Seitenlänge wird die Kammerhauptverwaltung organisiert. Die Haupterschließung erfolgt über das großzügige Foyer und leitet Angestellte und Besucher über ein attraktives zentrales Treppenhaus mit Aufzugskern und Luftraum in die Obergeschosse. An diesem Luftraum werden Wartezonen und Teeküchen angeboten. Durch Ausblicke und Lichtführung über Verglasungselemente wird die Orientierung im Gebäude Angrenzend an das Foyer werden im EG die Poststelle, Infotheke und Besprechungsräume angeordnet. Im westlichen Bereich befinden sich zudem EDV-Räume und eine Bewirtungsküche. Im 1. - 5. Obergeschoss wird eine reine Büronutzung abgebildet.
Aufgabe
Neubau von Büro- und Verwaltungsräumen, Empfangs- und Servicebereichen, Archivräumen im Untergeschoss
Bauherr
Handwerkskammer Niederbayern Oberpfalz
Kenndaten
NF 2.400m²
Leistungsumfang
LPH 1-9 HOAI
Erstellung Brandschutzplanung
Ausführungszeit
Wettbewerb 1. Preis 10|2008
Planung ab 02|2009
Ausführung 03|2012 - 09|2013
- 年
- 2013
- Project Status
- 竣工済













