catalan-architects.com
Profiles of Selected Architects
プロフィール
プロジェクト
求人情報
イベント情報
Magazine
ネットワーク
ログイン
登録
日本語
Català
Deutsch
English
Español
Français
Italiano
Nederlands
Português
中文
日本語
Català
Deutsch
English
Español
Français
Italiano
Nederlands
Português
中文
日本語
Catalan-Architects
プロフィール
建築家
Inches Geleta
ウェブサイト概要
プロジェクト
チーム
English
English
Italiano
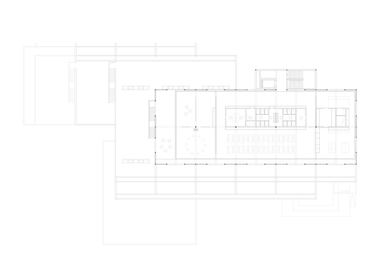
School extension
School extension in Viganello: additional volume on the roof of a 70's existing building
学校
年
2017-2020
Project Status
建設中
チーム
matteo inches, nastasja geleta
Inches Geleta によるその他のプロジェクト
Palazzo Pioda
Locarno, スイス
Care Home
Losone, スイス
MeCrì Museum
Minusio, スイス
Desgraz House
Solduno, スイス
Pallone House
Claro, スイス