Haus Fuschl

5330 Fuschl, オーストリア
写真 © Sebastian Illichmann

Das Grundstück liegt in einem beschaulichen Ost-West-ausgerichtetem Tal im Salzkammergut. Aufgrund der Nähe zu einem Bach wurde das Gebäude nicht unterkellert und das Erdgeschoß in Massivbauweise errichtet. Für das Obergeschoß, die Geschoßdecken sowie den Dachstuhl wurde eine Holzbauweise gewählt.
Im Erdgeschoß befinden sich: das Vorzimmer mit Garderobe, eine nach Osten und Süden ausgerichtete und mit großen Fenstern und Terrassentüren versehene Wohnküche, ein großer Abstell- und Technikraum, sowie eine Sauna mit Ruhe- bzw. Gästeraum.

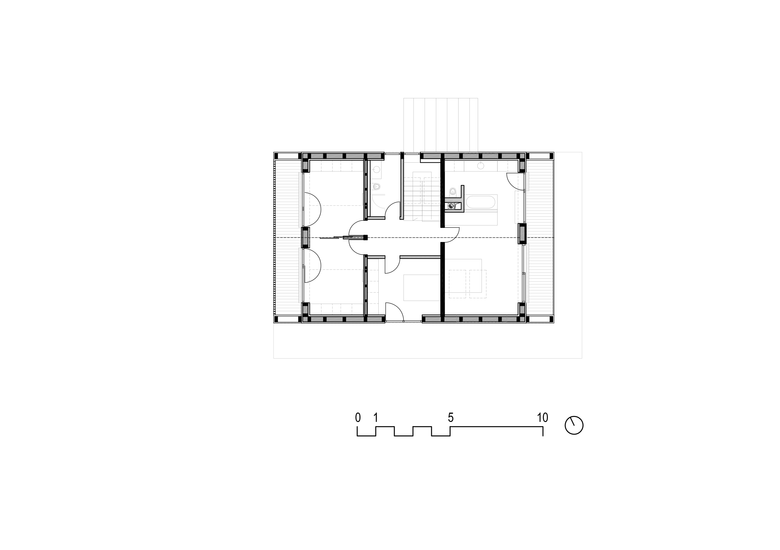
Im Obergeschoß liegen die Kinderzimmer, ein Kinderbad, und der Elternbereich mit einem direkt angeschlossenen Badezimmer welches nur durch eine Glasscheibe abgetrennt ist.

An beiden Enden des längsrechteckigen Gebäudes wurden im Obergeschoß jeweils Räume über die gesamte Gebäudebreite angeordnet. Die in diesen Räumen spürbare Dachform wurde im Außenbereich verlängert. Dadurch entstehen ost- und westseitig wettergeschützte Balkone welche wiederrum im Erdgeschoß an der Ostseite einen geschützten Außenraum vor dem Wohnzimmer und an der Westseite einen überdachten Eingangsbereich generieren. Im westseitigen Zimmer im Obergeschoß wurde zusätzlich eine Spiel- bzw. Schlafgalerie eingezogen. Dieses derzeit von den beiden Buben benutzte Zimmer kann zu einem späteren Zeitpunkt mit einer Mittelwand versehen werden.

Beheizt wird das hochwärmegedämmte Haus mittels einer Luft-Wärme-Pumpe und Fußbodenheizung.

写真 © Sebastian Illichmann
写真 © Sebastian Illichmann
写真 © Sebastian Illichmann
写真 © Sebastian Illichmann
図面 © Sebastian Illichmann
図面 © Sebastian Illichmann
図面 © Sebastian Illichmann
2016

illichmann-architecture によるその他のプロジェクト 

PHS-Stachegasse
Wien, オーストリア
Wohnanlage Korneuburg
Korneuburg, オーストリア
House RH
Hollabrunn, オーストリア
Villenanlage Hinterbrühl
Hinterbrühl, オーストリア
Villa Z
Wien, オーストリア