軽井沢 Workation Villa
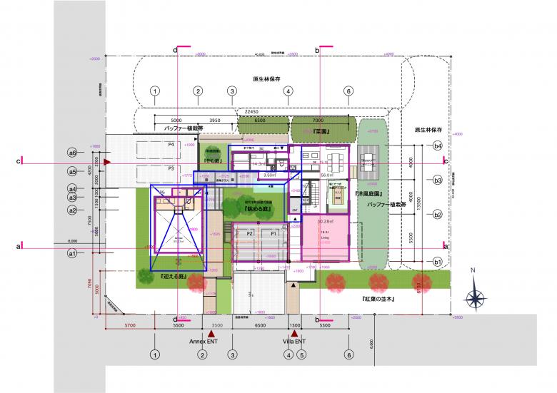
発想とコミュニケーションをインスパイアする空間を目指す本施設は母屋とアネックスで構成される。二棟は中庭を介して通路デッキで一体化されており、それぞれの利用目的に応じた使用が可能となっている。計画地周辺はなだらかな傾斜地であり、一棟とした場合高低差が生じるというデメリットを分棟とすることで敷地と樹林に馴染ませている。一方で厳寒期や梅雨の移動は不自由と感じるかもしれない。しかし建築の狙いは移動にある。移動にともない四季折々の眺望がシーンとして目に入ってくる。それらがシークエンスとなって脳に心地よい刺激が加わる。
天候、気温、風、木々のざわめき、野鳥のさえずり...人はそうした環境で新たな気づきを得る。回遊性のある室構成が発想を刺激し、気づきから得たヒントやアイデアがワーカー同士の交流へと発展させる Key となる。
働く場そのものを都心と軽井沢の二拠点化することで、従来の別荘発想に止まらず『仕事と生活の新たな形』への相乗効果を生み出そうとするアプローチである。
所在地 長野県
用途 戸建住宅・兼用住宅
設計 環境計画スタジオ 橋本健
規模
敷地面積:1200.00㎡
建築面積:200.55㎡
延床面積:232.08㎡
建蔽率:16.71%(許容20%)
容積率:19.34%(許容20%)
階数:地下1階、地上2階
最高高さ:8.30m
期間
設計期間:2022年4月〜2022年7月
敷地
地域地区:第一層低層住居専用地域、防火指定なし
法22条地域
- 年
- 2022
- Project Status
- デザイン案



