Familienbad Ohlsdorf
Mit der Inbetriebnahme des Familienbads Ohlsdorf im Sommer 2019 und der Gesamtfertigstellung ein Jahr später endete eine 15-jährige, von Wendungen, Unterbrechungen und Umbrüchen geprägte Planungs- und Bauzeit. Die in den l 960er und 70er Jahren auf dem Gelände eines ehemaligen Naturbades entstandene und aus Frei- und Hallenbad bestehende Anlage wurde durch einen Neubau mit flexiblem, erweitertem Angebot sowie deutlich vergrößerter, ganzjährig nutzbarer Wasserfläche ersetzt. Die Entscheidung des Bauherrn folgte einer langfristigen Strategie und stand am Ende eines komplexen Prozesses, der stets die zukunftsfes te Sicherung des Standorts für Schul- und Vereinsschwimmen, Familien und Sportler zum Ziel hatte.
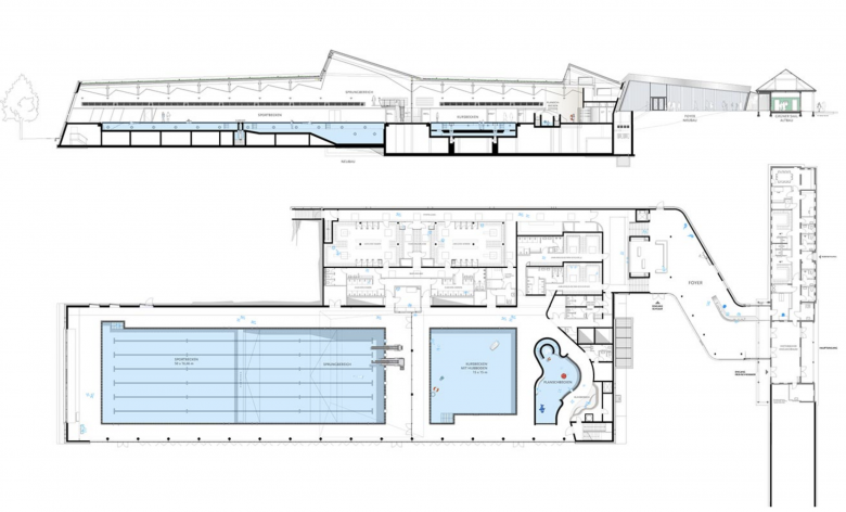
Damit war der eng umgrenzte Rahmen für die Planung gesetzt. Die bestehende Schwimmhalle im Süden des Grundstücks musste bis zur Inbetriebnahme des neuen Bades in Betrieb bleiben, vor allem um die Grundversorgung für das Schul- und Vereinsschwimmen aufrecht zu erhalten. Das nördliche Drittel des Grundstücks stand für Wohnungsbau zum Verkauf. Demnach musste das Raumprogramm in einem schmalen Baufenster in Hanglage hinter dem Fritz Schumacher zugeschriebenen Eingangsgebäude des ehemaligen Naturbades umgesetzt werden. Erst nach Inbetriebnahme des Neubaus und nach Abbruch des Altbades konnten die Außenanlagen fertiggestellt werden.
Das historische Backsteingebäude mit tiefgezogenem, schiefergedecktem Walmdach und Uhrenturm bildet den Maßstab für die Höhenentwicklung des Gesamtensembles. Die Hanglage wurde genutzt, um den Baukörper in die Topographie hinein zu modellieren und dem Naturraum des Alsterparks respektvoll zu begegnen, was durch die begrünten Dachflächen unterstützt wird. Dadurch treten Umkleide- und Sanitärbereiche im Norden kaum in Erscheinung, und die zukünftigen Bewohner des neu entstehenden Wohnungsbaus schauen auf eine Grünfläche, aus der bei Dunkelheit das diffuse Licht der Oberlichter schimmert.
Die Deckenkonstruktion der Schwimmhalle besteht aus l ,85 Meter hohen Holzbindern. Unterhalb der Binder faltet sich eine helle, textile Membran. Sie erzeugt im Raum eine optisch und atmosphärisch angenehme Spannung, versteckt darüber hinaus Installationen und wirkt schallreduzierend auf die Raumakustik.
Der Neubau dockt mit dem dynamisch geschwungenen Foyer an das historische Eingangsgebäude an, das nach historischem Vorbild saniert worden ist und nach jahrzehntelanger Fremdnutzung seine ursprüngliche Bestimmung als Vorhalle zurückerhalten hat. Über den mit Jugendstilfliesen und Klinkerboden ausgestatteten „Grünen Saal" betritt man mit dem Gefühl, einen Zeitsprung zu erleben, das strahlend helle Foyer, das geprägt wird von einem Boden aus geschliffenem Gussasphaltestrich, einer geschwungenen Südfassade aus Profilbauglas und dem organisch geformten Empfangstresen aus Corian.
Vom Foyer gelangt man barrierefrei in die untere Ebene. Hier befindet sich neben den Funktionsbereichen wie Umkleide-, Sanitärund Abstellräumen auch die durch eine transparente Wand geteilte Schwimmhalle mit drei hintereinander aufgereihten Becken. Das Angebot für die Badegäste wurde erweitert und flexibel gestaltet. Das 50m-Sportschwimmbecken ist wettkampftauglich, durch eine Hubwand teilbar und somit vielseitig nutzbar. Das gilt auch für das Kursbecken, dessen Wassertiefe durch einen Hubboden veränderbar und auf die Ansprüche des jeweiligen Kursprogramms einstellbar ist. Eine Spielzone mit Planschbecken einschließlich Wasserrutsche und unregelmäßig aktivierten Fontänen sowie einem einladenden Ruhebereich für die Eltern runden das Angebot ab. Die ganzjährig nutzbare Wasserfläche wurde gegenüber dem Angebot im Altbad mehr als verdoppelt.
Auf der Süd- und Westseite ist das Schwimmbad überwiegend verglast und gibt den Blick in den Landschaftsraum des Alsterparks frei. Die gläserne Südfassade lässt sich zu großen Teilen in Richtung Terrasse und Liegewiese öffnen. Der fließende Übergang vom Innenraum in die großzügige Außenanlage verleiht der Anlage den Charakter eines Freibades.
Die Fassaden bestehen aus weißen Alucobond-Paneelen, die je nach Lichtstimmung in einem dezenten, changierenden Goldton glänzen, Eleganz und Coolness zugleich ausdrücken und somit eine Leichtigkeit vermitteln, die in einem angenehmen Kontrast zur wiederbelebten Backsteinarchitektur von Fritz Schumacher steht.
Die Größe der Freifläche steht der eines Freibades nicht nach, allerdings wird sie nicht erst mit Eröffnung der Freibadsaison im Juni, sondern durchaus schon an einem warmen Märztag freigegeben. Das zur Alster um ca. 6 m abfallende Gelände wurde in Bereiche für Sport, Ruhe und Spielen zoniert. Eine Sitzstufenlandschaft lehnt sich an die Stützwand zum Parkplatz und dient als Tribüne für das Beachvolleyballfeld. Terrasse und Liegewiese sowie der Sprayground mit spielerisch spritzenden Attraktionen komplettieren das Angebot im Außenraum.
Die beeindruckende technische Ausrüstung ist in einem Untergeschoss als weiße Wanne von imposantem Ausmaß verbaut. Anlieferung, Stellplätze und Feuerwehrzufahrt sind auf der oberen Ebene hinter dem Eingangsgebäude auf der Fläche des abgebrochenen Altbades angeordnet.
- 年
- 2020
- Project Status
- 竣工済
- クライエント
- Bäderland Hamburg GmbH
- BGF/ BRI
- 7.500m²/ 43.080m³
- Wasserfläche
- 1.140m²
- Wettbewerb
- 1. Platz








