Bildungszentrum West Neubau Verbinderbauten
Die demografische Entwicklung in Coswig zeigt sich in Form reduzierter Schülerzahlen. Die damit verbundenen Auswirkungen auf den öffentlichen Schulsektor, führten zur Überlegung, eine der beiden Grundschulen in Coswig zu schließen. Betroffen davon wäre die Grundschule West in Coswig gewesen, wenn nicht eine Schule in privater Trägerschaft, die evangelische Schule Coswig e. V., Räume in der bestehenden Schule West übernommen hätte. Vor dem Hintergrund dieser öffentlich-privaten Kooperation stellte der Freistaat in kurzer Zeit Fördermittel für den Umbau und die Sanierung des Gebäudebestandes zur Verfügung für dieses landesweit einmalige Pilotprojekt.
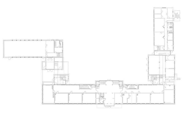
Die bestehenden Verbinderbauten wurden abgebrochen und durch zwei neue Verbinderbauten ersetzt, die auch die notwendigen baulichen Flucht- und Rettungswege für die gesamte bauliche Anlage sicher stellen. Darüber hinaus sind für heutige Anforderungen an den Schulbetrieb notwendige Räume, wie ein Speisesaal, Musik- und Werkräume in den Verbinderbauten untergebracht.
Die 3-geschossige Stahlbetonkonstruktion komplettiert den U-förmige Grundriss der Gesamtanlage mit zwei einfachen zwillingsartigen Baukörpern, die beidseitig an den Bestand anschließen und die verschiedenen Schulbereiche räumlich miteinander verbinden. Im Verbinder Ost befindet sich im Erdgeschoss der Speisesaal mit Küche. Der Verbinder West öffnet im Erdgeschoss eine Verbindung zwischen Pausenhof und Sportflächen.
Als besondere Herausforderung ist die sehr kurze Planungs- und Bauzeit von nur 20 Monaten zu nennen.
- 年
- 2014
- Project Status
- 竣工済
- クライエント
- Große Kreisstadt Coswig, Evangelischer Schulverein
- チーム
- Jan Blanek, Boris Blanek, Christiane Butt
- Projektsteuerung
- Kaiser Baucontrol
- Sanierung Bestandsgebäude
- IB Rötsch



