Rathauserweiterung
Der Ersatzbau für das Feyerabendhaus ergänzt das Ensemble am Stadtplatz mit besonderem Bezug zum Rathaus und erhält im Kontext die historische Struktur. Die Gebäudehöhe ist somit definiert. Auch die ruhige Dachform des bestehenden Gebäudes ist stadtbildprägend und wird neu interpretiert.
Durch die optimierte Ausnutzung des Grundstücks entsteht ein polygonaler, dreigeschossiger Baukörper mit einem Walmdach an der Gebäudeecke der Georg-Hummel Straße. An dieser Gebäudeecke wird die Hausmadonna wiedermontiert.
Durch die Situierung des Haupteingangs am Stadtplatz wird eine attraktive Adresse gebildet und der Bezug zum Rathaus gestärkt.
Den Bezug zum Rathaus trägt die gesamte Gebäudeerschließung Rechnung. So werden die Geschosse über eine „Himmelsleiter“ erschlossen, die durch besondere Lichtführung und Ausblicke auf den Stadtplatz eine besondere Qualität entwickelt. Durch die raumsparende Anordnung der Erschließung an der Brandwand des Nachbargebäudes ergibt sich eine großzügig nutzbare Ladenfläche im Erdgeschoss, flexibel organisierbare Büroflächen im 1. und 2. Obergeschoss mit angemessenen Nebennutzflächen und attraktiven Wartezonen.
Die Anordnung des Trauzimmers im 1. Obergeschoss mit Orientierung zum Stadtplatz trägt der besonderen Nutzung Rechnung.
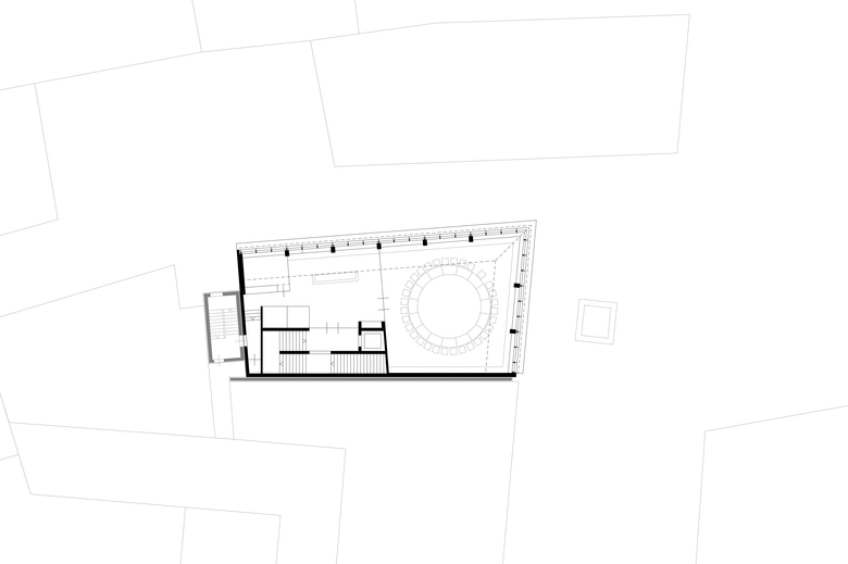
Der neue Sitzungssaal wird im Dachgeschoss angeordnet. Durch eine großzügige Verglasung mit außenliegender Lamellenstruktur als Interpretation der Dachfläche erhält dieses Geschoss eine besondere räumliche Qualität, insbesondere auch hinsichtlich Lichtführung und Ausblicken auf die Stadtsilhouette.
Der Sitzungssaal wird ergänzt durch ein angemessenes Foyer.
Aufgabe
Neubau von Sitzungs- und Trausaal, Verwaltungs- und Serviceräumen, Ladennutzung im Erdgeschoss, Archiv- und Lagerräume in den Untergeschossen
Bauherr
Stadt Moosburg a. d. Isar
Leistungsumfang
LPH 1-8 HOAI
Kenndaten
NF 1.100 m²
Ausführungszeit
Wettbewerb 3. Preis 04l2008
Zuschlag 09l2008 nach Überarbeitung
Planungsbeginn 11l2008
Ausführung 01l2011 - 02l2012
- Anno
- 2012








