Neubau Büro- und Werkstättengebäude, Zürich

© Andrea Scavini

Bauherrschaft:
Opernhaus Zürich AG und Allreal Generalunternehmung

Städtebau:
Erstellung einer geschlossenen Hofrandbebauung mit dem denkmalgeschützten Hotel Eden mit repräsentativer Fassade zum See.

Nutzung:
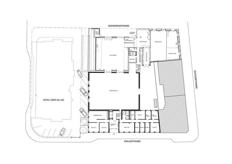
Erweiterung der Werkstätten des Opernhaus Zürich mit einem dreigeschossigen Montageraum und einem zweigeschossigen Malsaal. Integration des internationalen Opernstudios mit Proberäumen, Musikzimmern, Dramaturgie und Verwaltungsräumen des Opernhauses. Vermietbare Räume der Allreal Generalunternehmung.

Hinterlüftete Fassaden mit Verkleidung aus Sandsteinplatten. Kastenfenster aus äusserer nicht unterteilter Verglasung und inneren dreiteiligen Fenstern zum öffnen.

Foto © Andrea Scavini
Foto © Andrea Scavini
Grundriss Erdgeschoss
Grundriss 4. Obergeschoss
Quer- und Längschnitt durch Neubau und Werstättengebäude
Anno
2007

Altri progetti di Rafflenbeul + Partner Architekten AG 

Sanierung Bernhard Theater Zürich
Fassadensanierung Werkstättengebäude, Opernhaus Zürich
Zürich
Umbau und Erweiterung Restaurant Belcanto, Opernhaus Zürich
Zürich, Svizzera
Einbau Orchesterproberaum in Wissenschaftliche Kirche Kreuzplatz
Zürich, Svizzera
Umbau Personalrestaurant, Opernhaus Zürich
Zürich, Svizzera