Longgang International Printing Market
POA Architects released the design of ‘Longgang International Printing Market’.
Printing and packaging industry is one of the leading pillar industries in Longgang, and ‘Longgang International Printing Market’ is an important carrier for Longgang to accelerate industrial transformation and upgrading, and to plant new advantages in development. As one of the three major printing bases in China, Longgang has a complete industrial chain, which is unique in the country, and has been awarded the title of ‘China Printing City’. The city has 894 enterprises holding printing licences, 40085 related market players, more than 100,000 employees, the output value of printing and packaging accounted for more than 60% of the total output value of Longgang, in an industrial chain to achieve the common prosperity of the majority of people in Longgang.
Operating Philosophy
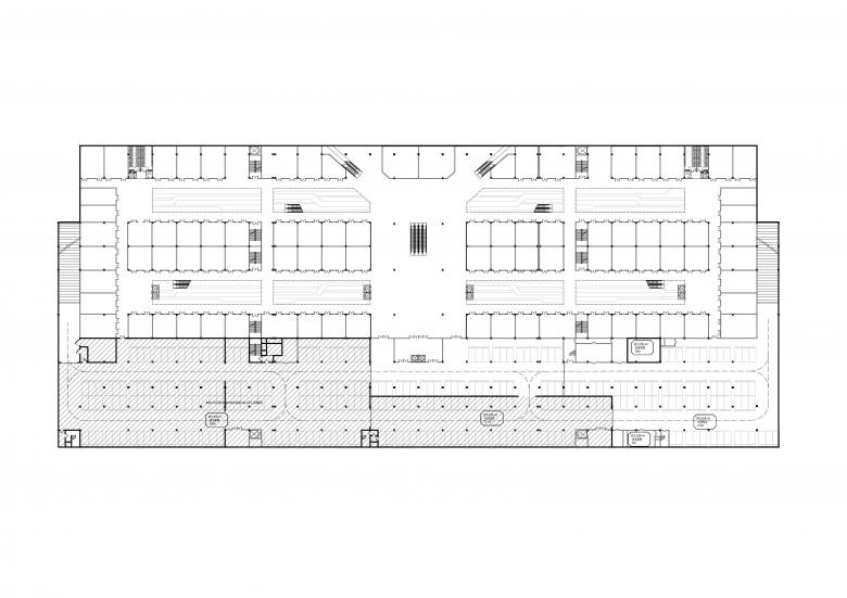
The total land area of the project is about 63,000 square metres, and the total construction area is about 127,000 square metres, of which the above ground construction area is about 100,000 square metres, including three parts of the professional market, Class C warehouse, and ancillary buildings; the underground construction area is 27,000 square metres, including two parts of the underground commercial and motor vehicle parking garage.POA designed ‘Longgang International Printing Market’ is a comprehensive market with a green technology core, and at the same time, it is an industrial park of passenger and cargo separation, efficient and centralised whole life cycle. POA designed ‘Longgang International Printing Market’ as a comprehensive market with green technology as its core, and also a full life cycle industrial park with separation of passengers and goods, high efficiency and concentration.
The design of POA fully understands the characteristics of Longgang's economic development and the industrial characteristics of the printing industry. Longgang International Printing Market aims to shape a professional market that is convenient, intelligent, humane, distinctive and standardised, and to make full use of the market operation experience that has already been accumulated in Longgang's printing industry, so as to inject new impetus into the sustained development of Longgang's printing industry. It will open a new chapter for accelerating the construction of a modern industrial system and promoting the industrial innovation and globalisation of Longgang's printing industry.
Inspiration and Concept
The real market is not in size, old or new, but in its vitality. A market with vitality naturally has character and soul, and it carries the memory and future of the people.POA is not designing a brand-new market, but another innovative exploration based on decades of development experience in Longgang, which is a natural metabolism. The new market embodies the concept of integration and co-development of Longgang's printing industry to the greatest extent possible, so that a more professional market environment for the industry to inject new energy.
The design of Longgang International Printing Market is intended to be a dialogue between tradition and the future. the design of POA embodies the ancient oriental philosophy of looking up to science and humanity, and is presented in a modern way. The design is closely related to the theme of ‘Printing’, reflecting Longgang's regional characteristics and humanistic connotations. Upon completion, it will be the first three-star green building integrated professional market in China, and the sustainable development concept will be another important step for Longgang to connect with the global market.
- Anno
- 2022
- Team
- PAN Chengshou(Partner), Vivian Chow, Tzu Chi Lam
- Consultant
- Zhejiang Zhongwei Architectural Engineering Design Co.
- Landscape Consultant
- Wenzhou Supreme Landscape Design Co.
- Facade Consultant
- Zhejiang Yafei Curtain Wall









