Umbau und Instandsetzung Schulhaus Kern

Zürich (ZH), Svizzera
Visualizzazione © Studio 12, Luzern
Visualizzazione © Studio 12, Luzern
Visualizzazione © Studio 12, Luzern
Anno
2012
Project Status
Progetto
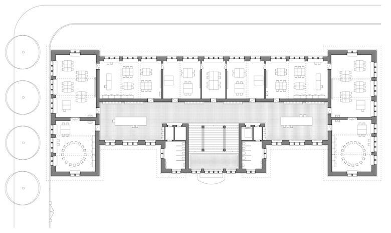
Programm
Primarschule mit Turnhallen
Auslober
Stadt Zürich, Amt für Hochbauten
Architekten
nik biedermann architekt
Rauminhalt SIA 416
ca. 23.500m3
Gebäudekosten BKP 1-9
ca. Fr. 19.5 Mio.
Planerwahlverfahren
2012, ohne Rang

Altri progetti di nik biedermann architekten gmbh 

Instandsetzung / Umnutzung Städtische Poliklinik
Zürich, Svizzera
Amtshaus III Teilinstandsetzung
Zürich, Svizzera
Umbau Schopf Sterneggweg
Meilen (ZH), Svizzera
Machbarkeitsstudie Villa "Guggenbühl"
Herrliberg (ZH), Svizzera
Umnutzung "Haus zur Sul"
Zürich (ZH), Svizzera