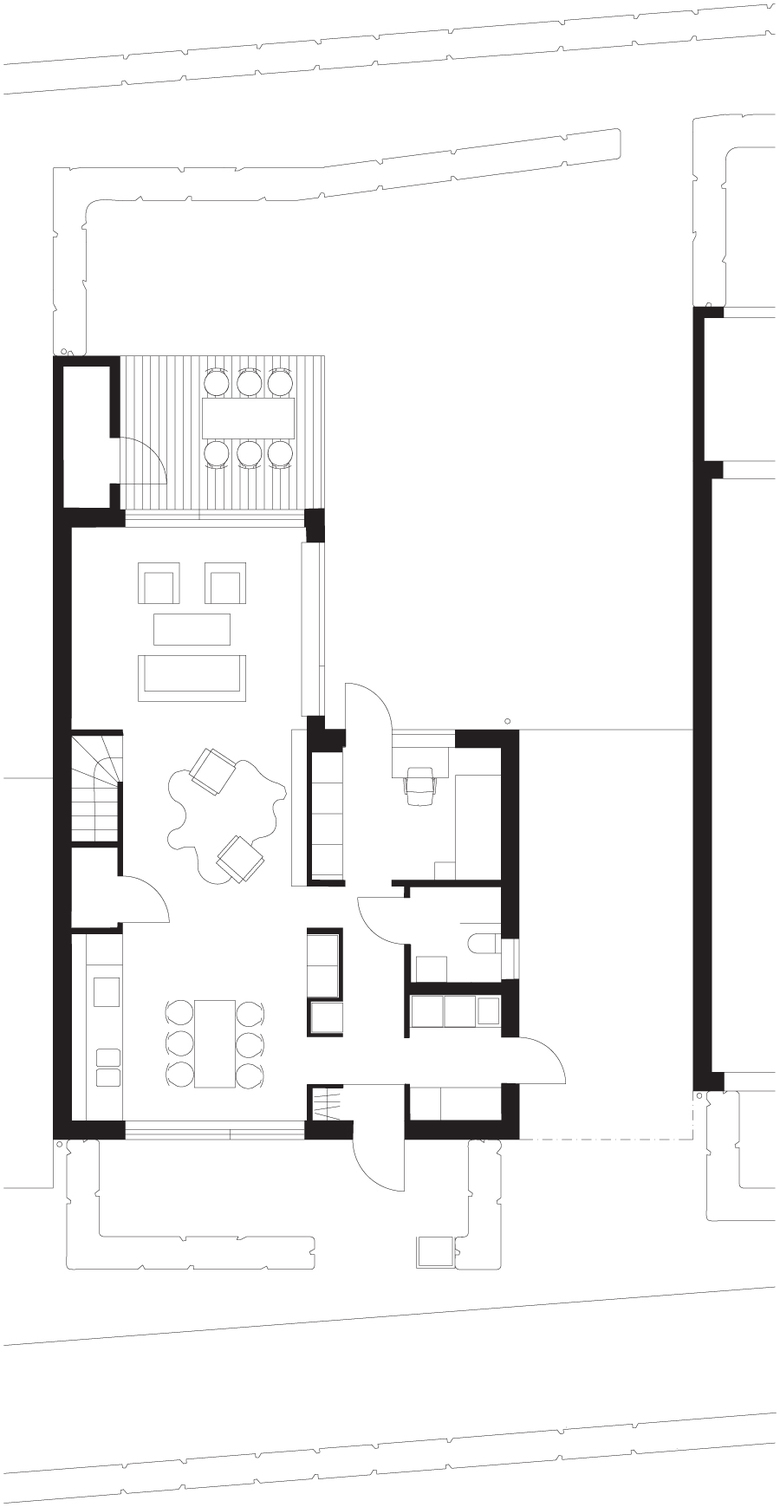
Sparsamheten, Low density residential area

Stockholm, Sweden

© Kjellander & Sjöberg Arkitektkontor AB

Photography: Adam Mörk

Anno
2010

Altri progetti di Kjellander Sjöberg 

Sugar Factory
The Forests of Venice
Venice, Italia
Plus-Energy Houses Brofästet
Stockholm, Sweden
Living on the Wedge
Lund, Sweden
Fittja Terraces
Botkyrka, Sweden