Hörsaal- und Medienzentrum
Das Hörsaal- und Medienzentrum ist die neue Mitte des Campus Lichtwiese. Ein signifikanter freistehender Baukörper übernimmt die Funktion eines zentralen Gelenkes auf einem neuen Campus-Platz, der die bestehenden Institutsbauten mit dem Neubau verbindet.
Der Platz ist als eine Fläche konzipiert, die in Form eines offenen Foyers durch das Hörsaal- und Medienzentrum „hindurchfließt“. Das Hörsaal- und Medienzentrum wird als städtische Konsolidierung der Lichtwiese verstanden, bei der die Aktivitäten des umgebenden Universitätsgeländes auf dem Platz und im Gebäude zu einem Erlebnisraum verdichtet werden.
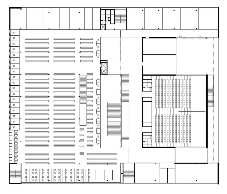
Das Gebäude ist wie ein dreidimensionales Netzwerk und erhält durch seine Besonderheit – es ist Bibliothek und Hörsaalzentrum in einem – eine neue und charakteristische Identität. Alle Studenten, die über den Luftraum (Canyon) die Hörsäle und die Obergeschosse erschließen, haben Blickkontakt in die Bibliothek und zu deren Arbeitsplätzen. Durch ein ausgefeiltes System voneinander unabhängiger Foyertreppen sind die Bibliothek und die Hör- und Seminarsäle räumlich eng miteinander verknüpft, können aber dennoch eigenständig und autark betrieben und erschlossen werden. Wesentlich unterstützt wird diese Wechselbeziehung durch die „Doppelnutzung“ vieler Räume: alle Seminar- und Lernräume können auf einfache Art und Weise und jeweils in kleinen Einheiten eigenständig der Bibliothek zugeordnet werden. Großzügige interne Freitreppen und hohe Lufträume vernetzen die Ebenen miteinander und erzeugen eine besondere räumliche Qualität.
Der architektonische Ausdruck des Gebäudes wird geprägt durch die innere Komplexität ineinander verschachtelter Volumen und Nutzungen, die sich nach außen in einer unterschiedlich tiefen, plastischen Fassadenausbildung zeigt.
- Anno
- 2013
- Cliente
- TU Darmstadt
- Aufgabe
- Neubau Hörsaal- und Medienzentrum am Standort Lichtwiese, TU Darmstadt
- Hochbaulicher Wettbewerb
- 2009, 1. Preis









