Torstraße 149
IDEA – A new apartment building is being developed in Berlin-Mitte. Boldly designed. Innovative. And elegant. An avant-garde building sculpture in the heart of Berlin between bourgeois generosity and modern transparency. An object that allows you to live in an extraordinary building – and makes the borders between the art of construction and design disappear. In short: architecture, newly conceived. Ready for occupancy in December 2012.
STYLE – With Tor 149, the architects have quoted the design vocabulary of the Gründerzeit in Berlin – and have transferred it to the 21st century. The shimmering aluminium exterior façade defines the character. Its crystal- line appearing surface reflects the sky over the city – and it changes its appearance depending on the incidence of light. The building thus constitutes an extraordinary visual highlight.
The façade of Tor 149 features a bright matt metal-coloured hue. A special effect appears when you walk by the building. For a moment it seems as if the building is rotating and then turns away. This effect is achieved by faceted façade elements which capture the light in different ways.
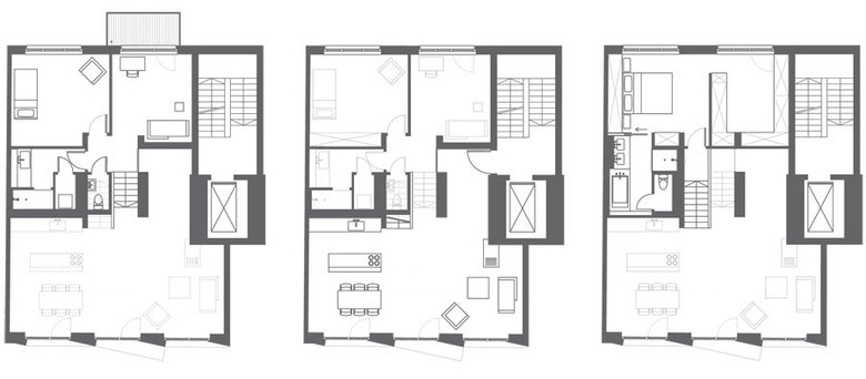
CONCEPT – Space for yourself. Ceiling heights of up to 3.8 meters, spacious terraces and south-facing windows with year-round exposure to the sun. The light-flooded apartments of Tor 149 convey the spirit of the times and elegance. With innovative floor plans. Carefully selected materials. And design elements that show stylistic confidence. The lobby is an experience in itself. Immersed in golden light, you enter architecture in its purest form – and leave the hustle of the city behind.
BUILDING FACILITIES – Faceted aluminum facade for Torstraße | Exceptional Lobby | Supporting solar thermal system | Large windows in aluminum elements | Underground parking on request | Charging station for electric vehicles | Luxuriously styled courtyard with stone bands; Fields at different heights with raised beds.
- Anno
- 2012
- Cliente
- tor 149 Grundbesitz GmbH
- Team GRAFT
- Lars Krückeberg, Wolfram Putz, Thomas Willemeit, Sven Fuchs, Sonja Wedemeyer, Suhee Oh, Kim Harder, Andrea Göldel, Stephen Molloy, Sebastian Gernhardt, David Tyl, Puja Shafaroudi, Arvid Wölfel














