Make It Right - Shotgun

Lower 9th Ward, New Orleans, USA
Foto © Virginia Miller

Make It Right in the Lower 9th Ward – By April 2009 a total of 6 houses have been finished as part of the Make It Right Program in the Lower 9th Ward, the owners were able to move back and enjoy the benefits of their new homes. Two of these houses were designed by GRAFT. 9 more houses are currently under construction, one of them also designed by GRAFT, 10 houses are in the permit process. The houses designed by GRAFT are inspired by the Cradle to Cradle Philosophy and received LEED Platinum certification. They are prefabricated modular units, constructed off-site.

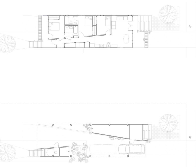
Graft’s proposal for housing in the Lower Ninth merges metaphorical abstractions of traditional and modern architecture, driven with the purpose of capitalizing on the more successful components within each as a means with which to generate a more robust whole.

Our proposal positions itself from the starting point of a traditional New Orleans housing typology, the shot gun house, which is abstractly represented through an expressive, almost exaggerated, gable roof and generous front porch. The fluidity of the relationship between home and community, the provision of areas designated to interaction with neighbors and friends, is truly one of the things that makes the Lower 9th so incredibly special. We felt it important to pay homage to this. Through progression of the project, the house is coupled with modern affordable sustainable amenities. The transition of short section of the house reflects the progressive transformation, until finally arriving at a representation of contemporary modernism, expressed at the rear of the home, vis a vis the iconic flat roof, commonly associated with the apex of modernism.

This resulting flat roof space offers the opportunity to program a safe haven; a space designed to aid in life safety by providing a strategy for passive survivability.

Sustainable features include
Solar panels, Water Catchments system, Geothermal system, With Heat pump, tankless water heater, high ceilings for stack ventilation, operable windows which aid in stack ventilation and cross ventilation, highly insulated hurricane resistant windows, High R value insulation, none off gassing paint and finish materials, permeable pavement, energy star appliances, ceiling fans, low flow toilets.

Foto © Virginia Miller
Foto © Virginia Miller
Foto © Virginia Miller
Foto © Virginia Miller
Foto © Virginia Miller
Foto © Virginia Miller
Foto © Virginia Miller
Foto © Virginia Miller
Disegno © GRAFT
Foto © GRAFT
Foto © Virginia Miller
Foto © Virginia Miller
Foto © Virginia Miller
Anno
2009
Cliente
Make It Right Foundation

Altri progetti di GRAFT 

E.ON Ultra-Fast Charging Stations
United Kingdom, Czech Republic, Slovakia, Hungary, Sweden, Denmark, Norway, Germania
Wohnen am Speicher
Oranienburg, Germania
Feuerstein-Arena
Wernigerode, Germania
Eiswerk
Berlin, Germania
Templiner Park
Berlin, Germania