Hotel Q - First Class Design Hotel

Kurfürstendamm, 10719 Berlin, Germania
Foto © hiepler, brunier,

Sleeping with your eyes wide open – Hotels are homes in time. For a short while they lend the visitor a world where he inhabits a new identity, they permit him the new telling of his story, enable the foretaste on another future. Hotels can seduce to experiment with old habits and inspire new rituals.

Aside from the sleeping factories of mass tourism or the standardised hotel chain, a new type of hotel has emerged in the last decade world wide. These „design hotels” offer places that want to be unmistakable, are unique experiences of architectonic spaces and cosmopolitan hubs for the traveler.

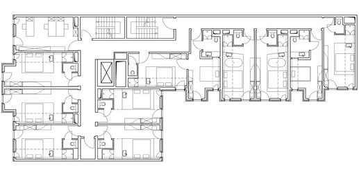
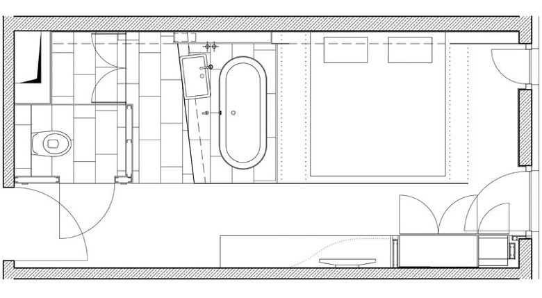
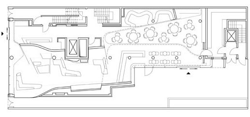
At the hotel location “Knesebeckstrasse” at the corner to the buzzing Kurfürstendamm, a place emerges, that draws the visitor of Berlin into this city, well before he has departed from home. GRAFT laid out a hotel landscape, that changes the classic spacial canon through the topographical folding of the program. The tectonical logic of elemented construction distorts itself, blends into hybrid zones with double functional occupancies. The inclined area is simultaneously a separating wall but also usable furniture, the lifted floor is circulation surface or a space, emerged from underneath the skin of the house.

The flow of this “landscape” creates generous connections where otherwise a typical dissection into singular spaces would prevail. The topographical treatment of the design problem maximises program utilization and creates a continuous flow of form and space. The visitor will find a narrative that departs from conventional perceptual experiences and allows ambiguous readings of the space.

The research for a material, that would provide both technical and aesthetic qualities required, the architects found Marmoleum Real 3127, a product of the Forbo Flooring GmbH. An ambitious and rigorous search for form and function led to this new and innovative design.

The inhabitant becomes participant on this landscape, changing his interaction with architecture and furniture, is walking up the walls in order to sit on top of the celebrating crowd. Or sinks into tubs, that offer themselfs like hot springs in the ground in the middle of the room - to slow down and to sleep with his eyes wide open.

Foto © hiepler, brunier,
Foto © hiepler, brunier,
Foto © hiepler, brunier,
Foto © hiepler, brunier,
Foto © hiepler, brunier,
Foto © hiepler, brunier,
Foto © hiepler, brunier,
Foto © hiepler, brunier,
Foto © hiepler, brunier,
Foto © hiepler, brunier,
Disegno © GRAFT
Disegno © GRAFT
Disegno © GRAFT
Disegno © GRAFT
Disegno © GRAFT
Anno
2004
Cliente
WANZL GmbH & Co. Bauträgergesellschaft KG
Team GRAFT
Lars Krückeberg, Wolfram Putz, Thomas Willemeit | Project manager: Wolfgang Grenz | Project Team: Johannes Jakubeit, Michael Rapp, Sascha Ganske | Assistants Stephanie Bünau, Leo Kocan, Lennart Wiechell, Sven Fuchs, Nikolas Krause, Helge Lezius
Size
3,200 sqm

Altri progetti di GRAFT 

E.ON Ultra-Fast Charging Stations
United Kingdom, Czech Republic, Slovakia, Hungary, Sweden, Denmark, Norway, Germania
Wohnen am Speicher
Oranienburg, Germania
Feuerstein-Arena
Wernigerode, Germania
Eiswerk
Berlin, Germania
Templiner Park
Berlin, Germania