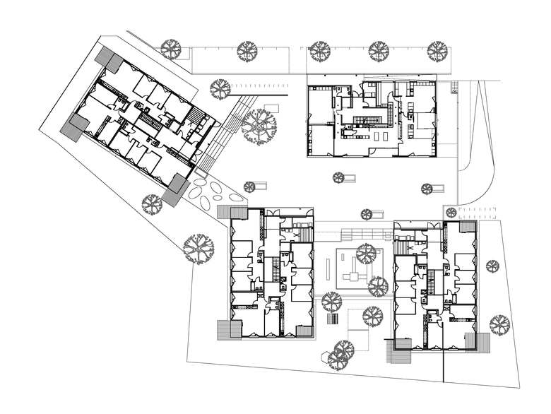
Construction de 4 immeubles d’habitations

Lausanne, Svizzera

Concours 1 er Prix 55 logements locatifs pour la FLCL

Anno
2006
Project Status
Costruito

Altri progetti di Giovanoli-Mozer architectes 

Extension Foyer
Cugy, Svizzera
Fondation Terra et Casa
Genève, Svizzera
Transformation Immeuble Madeleine
Lausanne, Svizzera
Ensemble Résidentiel Le Corbusier
Genève, Svizzera
Immeuble d’habitations Résidentiel
Genève, Svizzera