Groupe Scolaire et Centre Municipal de Loisirs sur le secteur de Lavoisier
Les bâtiments scolaires influencent le développement des enfants qui y passent la majeure partie de la journée. Ce sont aussi des projets de prestige pour les communes.
La nouvelle école primaire et maternelle de Dietmar Feichtinger Architectes à Antony est le résultat d'un concours remporté. C’est une énorme amélioration par rapport à l'ancienne école qu'elle remplace. Antony fait partie de la Métropole du Grand Paris, pour atteindre le centre de Paris l’on met 20 minutes avec le RER C.
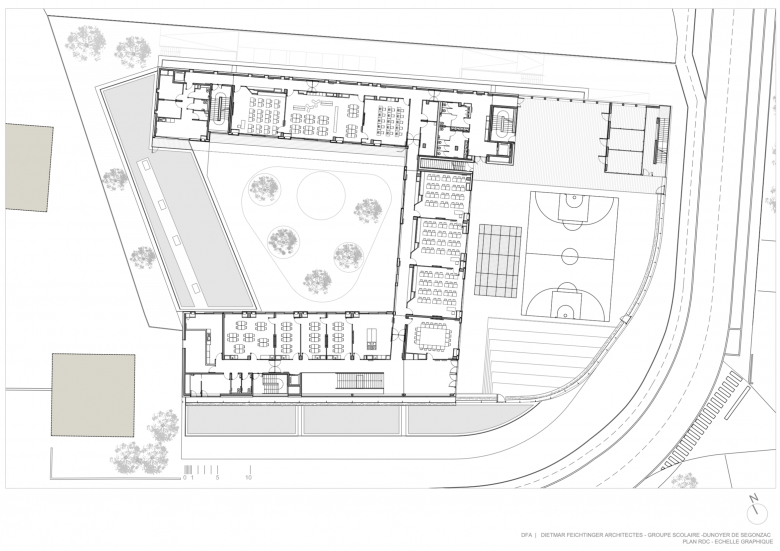
L'école est proche de la gare, à proximité immédiate d'un collège et d'un lycée. Elle épouse avec sa façade extérieure la courbe de la rue Pierre-Gilles de Gennes. Afin de s'intégrer parfaitement au tissu urbain, d’optimiser l'espace des cours et obtenir un ensoleillement optimal pour les classes, le bâtiment est situé sur les limites du site.
Les différentes trajectoires du soleil selon la saison ont été simulées. Les ailes du bâtiment sont décalées en hauteur : trois étages au nord-est, deux au nord-ouest et un étage donnant sur la voie en courbe du sud-ouest au sud-est. Le soleil entre de manière optimale dans les cours et les salles de classe, la consommation d'énergie reste faible. L'école se compose en quatre ailes qui entourent une grande cour trapézoïdale. Une cour arborée et une grande toit-terrasse pour les classes aux étages forment une centralité.
Baignée dans la lumière naturelle, les pièces offrent une grande liberté de mouvement et un accès direct à l'extérieur.
Un équipement ouvert sur le quartier
La salle polyvalente du rez-de-chaussée est placée sur la courbe au sud-est. C’est un espace de jeux, de sport et d'exercice pour les enfants, mais aussi pour des événements extrascolaires. Elle forme la jonction entre le restaurant scolaire côté rue et l'entrée dans l'aile sud-ouest de l'école.
Cette séquence donne sur la rue avec une façade vitrée courbe, en partie translucide et vêtu de métal déployé à l’endroit des ouvrants.
Cette disposition donne aux enfants une intimité toute en gardant une présence dans l'espace urbain, elle permet un éclairage et une ventilation naturels et signale l'ouverture. Entourée d'un large trottoir rouge, la salle s'élève vers la courbe jusqu'à une hauteur libre de quatre mètres.
Son toit légèrement incliné reçoit un terrain de sport en plein air. Des emmarchements en bois sont posés sur la pente de la toiture, un filet en acier inoxydable sert de filet à balles et de protection contre les chutes. Des bacs à plantes longent la limite extérieure de la terrasse. Des bambous plantés dans le bac créent un filtre entre la cour haute et l’espace public.
Des flux et une orientation évidente
Au sud-ouest la façade se décale par rapport à la rive de la toiture pour former un auvent qui annonce et protège l'entrée. Ici, les enfants peuvent attendre à l’abri avant l’ouverture de l'école. La salle de gymnastique à l’ouest est légèrement avancée. Elle est également utilisée pour des activités extrascolaires.
Les circulations qui amènent aux salles de classes sont majoritairement unilatérales et éclairées naturellement. Entre salles de classes et circulation un mur épais intègre les vestiaires coté couloir et un meuble en bois coté classe. Après le sas de l’entrée le hall ouvert sur le niveau supérieur permet de diviser les flux. Les enfants de l’école maternelle prennent les circulations au rez de chaussée. Un escalier monumental amène les enfants de l’école élémentaire vers la cour haute.
Des classes ensoleillées et ouvertes vers l’extérieur
Toutes les classes des maternelles sont situées au rez-de-chaussée. Des façades vitrées toute hauteur intègrent des grandes ouvertures coulissantes. Elles s’ouvrent sur la cour qui est conçue comme un paysage artificiel avec de douces collines en sol souple, d'arbres et d'aires de jeux. Les enfants peuvent sortir directement de leurs classes.
L'étage supérieur est organisé de manière similaire : des salles de classes sont orientées vers la grande terrasse dont les bords arrondis font référence à la courbe de la rue. Son revêtement est constitué d’une surface en béton drainant et une partie en caillebotis couvrant le patio du restaurant. Des gradins au sud qui suivent l’inclinaison de la toiture de la salle polyvalente au rez de chaussée sont en bois.
Au nord-est les classes de l’école élémentaire s’étendent sur un 2ème niveau. Le volume couvre une partie de la cour et forme un préau. Un filet en acier inoxydable ferme cette large fenêtre sur les alentours.
Au niveau R-1 de cette aile se situe le parking des professeurs – 20 places - et la livraison de la cuisine.
La qualité de l’air optimisée
La qualité de l'air joue un rôle majeur dans le bien-être et la capacité de concentration des enfants. Un panneau en bois du sol au plafond interrompt la façade vitrée des classes. Derrière ce panneau des ventelles motorisées s’ouvrent automatiquement en cas de besoin d’oxygène. Un radiateur réchauffe l'air entrant en hiver pour éviter un courant froid. Si le taux de CO2 dans l'air ambiant augmente de trop, de l'air frais est ainsi fourni. L’extraction se fait par des gaines verticales et des extracteurs situés en toiture – un par classe.
Chaque classe est traité individuellement ce qui permet de gérer le renouvellement de manière le plus efficace en énergie.
La partie en lattes de bois verticales donne un rythme à la façade vitrée et contribue à l'ambiance chaleureuse de la cour.
Une matérialité robuste
La structure porteuse est en béton. Les voiles et poteaux sont en béton apparent.
Dans la zone d'entrée le sol est en parquet sur chant, en chêne, comme pour les salles polyvalentes. Le sol des salles des classes et des circulations est en linoleum posé sur une couche d’absorption acoustique.
La cantine est orientée vers la rue. L’éclairage naturel est renforcé par l’apport de lumière par le patio intérieur sous la cour des élémentaires.
Pour Dietmar Feichtinger, l'architecture est la scène de la vie quotidienne, elle est le moyen qui permet d’évoluer dans l’espace avec générosité.
Citation de Dietmar Feichtinger
« Les écoles sont des lieux très importants dans le développement des enfants. L'architecture est l'arrière-plan. Nous voulons créer des espaces de vie pour les élèves et les enseignants avec une matérialité robuste, baignés de lumière naturelle et en rapport avec l’extérieur, des espaces qui évoluent avec les personnes qui les utilisent. »
- Anno
- 2020
- Cliente
- Ville d'Antony





















