Restructuration et extension de la piscine de la Kibitzenau
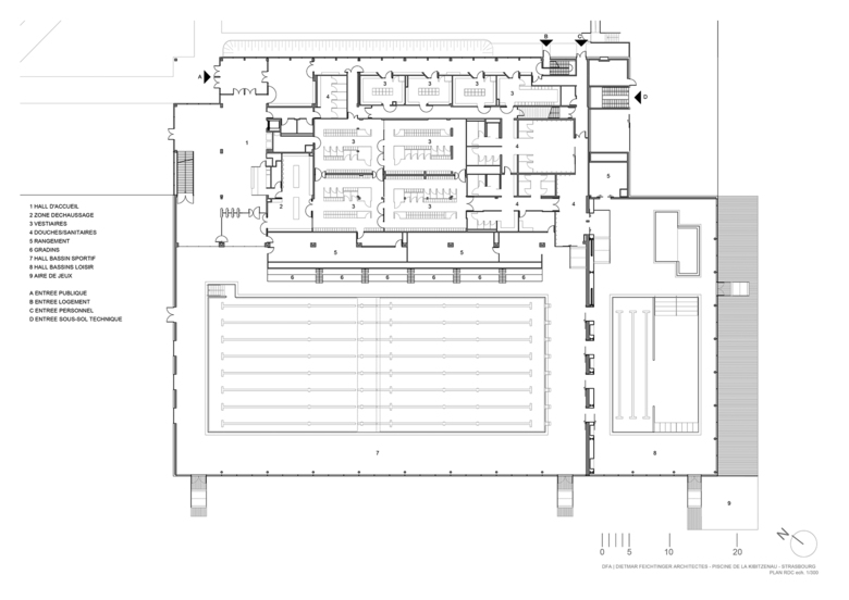
La piscine de la Kibitzenau, inaugurée en 1965, propose un bassin olympique (50m de longueur, 8 couloirs) idéal pour la nage sportive. Elle accueille également une équipe de waterpolo de haut niveau. La tribune pour les spectateurs se situe sur la longueur du bassin à l’est.
Le parti pris était celui de garder la forme, facile à remodeler, de rendre hommage à la structure béton existante, notamment les poutres monumentales.
Il s’agit de mettre en valeur l’existant, de créer un contraste entre la charpente existante en béton apparent et les nouveaux matériaux et couleurs: carrelage noir, murs et plafond blanc lumineux et les bassins en inox.
La restructuration permet de trouver un fonctionnement clair, lisible. On retrouve la marche en avant entre l’accueil, les vestiaires mixtes, les douches et les bassins en accord avec les attentes d’hygiène d’aujourd’hui. Ceci devient possible en déplaçant l’entrée à l’angle nord-ouest et en fermant le patio au rez-de-chaussée par une dalle. Les espaces des vestiaires collectifs sont adjacents aux espaces du grand public et se situent dans la continuité spatiale.
L’extension au sud complète l’offre pour les familles. Elle contient une pataugeoire et un bassin d’apprentissage. La façade s’ouvre largement vers le sud sur une terrasse en bois. La façade ouest de l’extension est entièrement vitrée en continuité avec la façade du hall principal avec le grand bassin.
Tous les espaces de la piscine deviennent lumineux par des larges ouvertures vers l’extérieur, en façade et en toiture. Des transparences entre les espaces sont créées, permettant au visiteur de suivre les activités dans la piscine depuis le hall et l’espace des pas perdus en mezzanine en liaison directe avec les tribunes.
Concours 09 | 2010
Début études 01 | 2011
Début travaux 10 | 2012
Surface 6 501 m²
- Anno
- 2014
- Cliente
- Communauté Urbaine de Strasbourg










