Wohnhausgruppe Obere Bergstraße
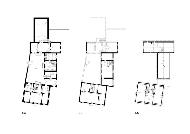
Die denkmalgeschützte Anlage besteht aus 3 Gebäuden, Vorderhaus (erbaut 1862), Mittelhaus (erbaut 1712), Hinterhaus (aufgestockt um 1900) mit einem Bergkeller zum Weinbergshang, die sich um einen gemeinsamen Hof gruppieren. Jedes Haus besitzt rückwärtig einen privaten Garten.
Die Neukonzeption der Nutzung konkretisierte sich in 3 Wohneinheiten, einschließlich einer Einliegerwohnung, sowie umfangreicher Nebenräume. Nach außen zeigt sich das Gebäudeensemble in seinem historischen Gewand, während die Innenraumgestaltung, unter Wiederverwendung alter Bauteile, heutige Ansprüche an Wohnen mit einer kontemporären Architektursprache verbindet. Die unzureichende Wärmedämmung konnte durch Heizleisten an den Außenwänden, durch Wand- u. Fussbodentemperierungen, ergänzende Doppelfenster sowie Dachdämmung und Dämmung des Erdgeschossbodens zum Erdreich weitestgehend kompensiert werden.
- Anno
- 2004
- Project Status
- Costruito
- Cliente
- Privat
- Team
- Boris Blanek, Jan Blanek, Till Blanek



