Logopädische Praxis Pattonville
Der mulitilinguale Stadtteil Pattonville in Ludwigsburg ist der indeale Standort zur Eröffnung einer logopädischen Praxis, so die Auftraggeber Simone Blanek und Christina Wolff. Im neuen Stadtteilzentrum haben Sie eine offene Etage mit ca. 100 qm Nutzfläche angemietet. Die Entscheidung für einen Neubau haben die jungen Unternehmerinnen bewußt getroffen, denn Sie legten großen Wert auf eine großzügige und flexible Gestaltung der Inneräume.
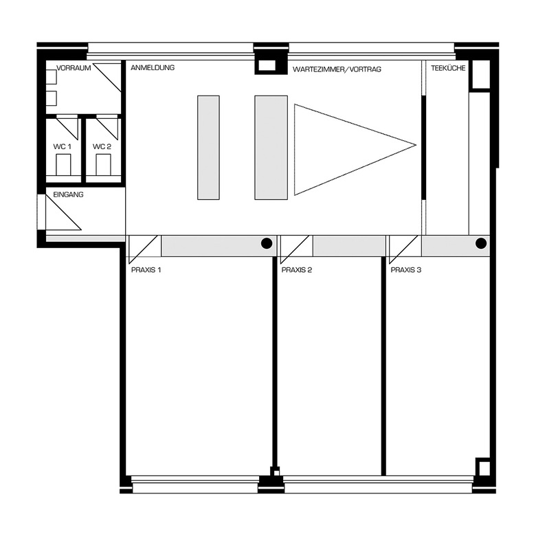
Die Praxis gliedert sich im Wesentlichen in zwei Raumbereiche. Die 3 Therapieräume und die „öffentliche Zone“ mit Empfang, Wartebereich und Küche. Um die Anforderung an normalen Praxisbetrieb und die Nutzung als Vortragsraum zu kombinieren, kann die „öffentliche Zone“ als ein Raumbereich der Nutzungssituation entsprechend über raumhohe Schiebetüren zusammengeschaltet werden. Von Beginn der Planung begleitete das Cooperate Design, von Designklinik, Björn Peters inhaltlich und visuell die Gestaltung der Räume. Der Sprachbaum vis a vis der Empfangsbox und das Orientierungsystem bilden mit der Gestaltung der Räume eine Einheit.
- Anno
- 2007
- Project Status
- Costruito
- Cliente
- Privat
- Team
- Jan Blanek, Till Blanek, Boris Blanek
- Corporate Design
- Designklinik Björn Peters


