Vanke experimental Center
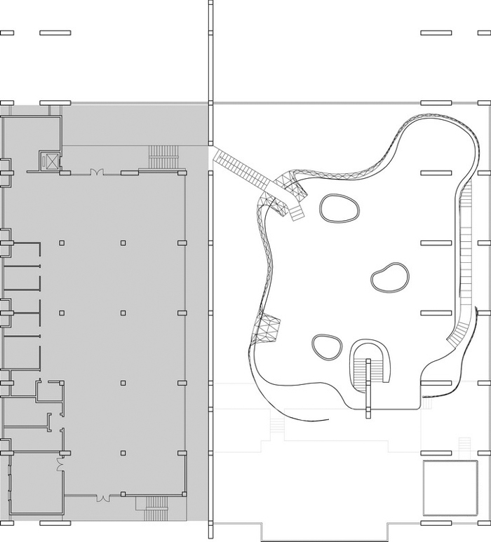
Vanke Experiment Center (VEC) is located in the east exhibition hall of Vanke Architecture Research center, Shenzhen. The project is to create a three-floor exhibition space to show the latest impressive and innovative product designs from the research group, as well as to provide a place to communicate and share the experience of the products with the product users. Vanke wants an encouraging, inspiring and stimulating space within the existing hollowed lobby.
As a point of departure for the design, we considered that Vanke is a real-estate group to study and exhibit architecture; their research center is needed to be visualized as a place full of life and exciting activities. The challenge was to introduce a concept that can soften the toughness and heaviness of the existing structure. We agreed the new design should be a more organic, self-structured single element, with the existing left untouched. Keen to leave the existing interior with an open airy feel, we inserted a fluid three dimensional cocoon covered by aluminum sheets playing off raw concrete trusses and beams to reflect our design philosophy.
The design is respectful by engaging the existing exhibition hall in dialogue and lifting the hall to a higher plan of excellence without compromising its integrity.
Project Name: Vanke Experiment Center
Location: Shenzhen
Client: Vanke Real Estate Co. Ltd
Architect: URBANUS Architecture & Design, Inc
Project Designer: Meng, Yan
Project Team: Tu, Jiang; Deng, Dan; Li, Hui; Liu, Zirong;
Structure and Material: steel, glass
Size: 2.600 sqm
Design Period: 2006
Construction Period: 2006
- Année
- 2006







