Living Levels

Mühlenstraße 60, 10243 Berlin, Allemagne
Photo © Roland Halbe

Die Areale entlang der Spree haben mit den klassischen öffentlichen Promenaden, wie es sie in Paris oder Rom gibt, kaum Gemeinsamkeiten. Jahrzehntelang gehörten diese Ufergebiete im Zentrum Berlins, überwiegend gewerblich genutzt, zu den unattraktivsten Gegenden der Stadt. Erst vor wenigen Jahren begann sich dieses brachliegende, nicht begehbare Grenzareal – in der DDR-Periode noch eine Todesstreifenzone – in einen der beliebtesten urbanen Anziehungspunkte zu verwandeln. Von der neu gewonnenen Lebensqualität an der East Side Gallery profitieren heute Berliner wie Besucher zugleich.

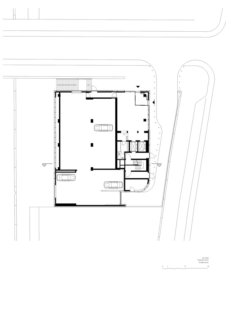
Mit dem Wohnhochhaus fand gleichzeitig eine Erweiterung der Nutzungsbandbreite am Spreeufer statt. Der weiße Solitär befindet sich am Brückenkopf der ehemaligen kriegszerstörten Brommybrücke und damit unmittelbar am Wasser. Skulptural geformt lebt der Wohnturm von der Rotation der aufeinander geschichteten Blöcke. Von allen Standpunkten aus betrachtet sorgt das Relief mit seinem Wechsel zwischen ausgehöhltem Volumen und den Auskragungen für ein visuelles Spannungsmoment.
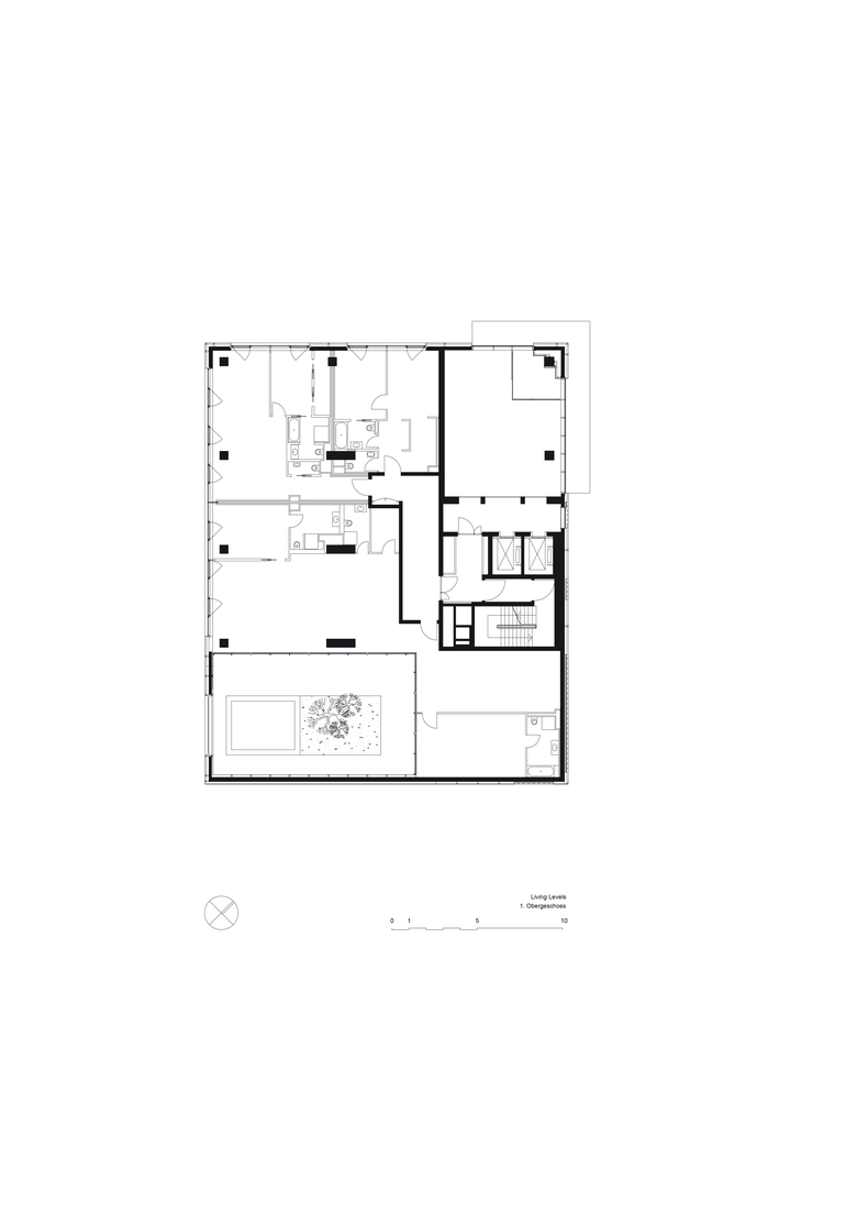
Das insgesamt 14-geschossige Hochhaus mit einer Fläche von 8.700 Quadratmetern ruht auf einem Sockel. Während der Sockelbereich überwiegend mit einer Blechverkleidung ausgestattet ist, hebt sich die Turm-Fassade durch großzügig verglaste Flächen hervor. Der Übergang von Außen nach Innen und somit von städtischer Öffentlichkeit zur Privatheit ist fließend: Genau im Schwellenbereich liegt direkt am Wasser ein öffentliches Café mit vorgelagerter Terrasse. Auf dem Dach des 1. Obergeschosses sowie im Bereich der Terrasse an der Uferpromenade sind jeweils Spielplätze für Kleinkinder eingerichtet. Die großzügige doppelgeschossige Eingangslobby wird auch als Galerie genutzt.

Insgesamt zählt der Turm 56 Wohneinheiten und vier Gewerbeeinheiten. Die Gliederung erlaubt in jeder Wohnung einen eigenen, geschützten Außenbereich und sorgt für einen Ausblick in mindestens zwei Himmelsrichtungen. Aufgrund der Stahlbetonskelettkonstruktion sind die Grundrisse mit Flächen zwischen 54 und 434 Quadratmetern variabel und ermöglichen einen individuellen Ausbau nach Wunsch der Nutzer. Einen wichtigen Part der Wohnqualität machen die großzügigen Balkone und Terrassen aus. Zur Ausstattung der Terrassen gehört eine permanente Begrünung, die sich in der Tradition eines vertikalen Gartens, beginnend bei der Uferbegrünung, den Turm partiell hochzieht.

Im Kellerbereich befinden sich haustechnische Erschließungs- und Technikflächen, der Müllsammelraum, ein Fahrradabstellraum, Wohnungsabstellräume und ein Lager. Die Erschließung des Gebäudes erfolgt über eine Doppelaufzugsgruppe, von denen einer als Feuerwehraufzug fungiert.

Photo © Roland Halbe
Photo © Roland Halbe
Photo © Lev Chestakov
Photo © Roland Halbe
Photo © Roland Halbe
Photo © Roland Halbe
Dessin © Tchoban Voss Architekten
Dessin © Tchoban Voss Architekten
Dessin © Tchoban Voss Architekten
Dessin © Tchoban Voss Architekten
Année
2015
Client
cic property & development GmbH
Architekt
Sergei Tchoban, Tchoban Voss Architekten
Projektpartner und -leiter
Philipp Bauer
Team
Karsten Waldschmidt (Projektleitung LP 1-2, Bauantrag), Christoph Heimermann, Stephan Luda-Scharping, Kenan Ozan, Anja Schroth
BGF
ca. 8.700 m²

Autres projets de TCHOBAN VOSS Architekten 

Rosenthaler Str. 43-45
Berlin, Allemagne
Ferrum 1
Sankt Petersburg, Russie
Königstadt-Quartier
Berlin, Allemagne
Landgericht Magdeburg
Magdeburg, Allemagne
Expoforum
Sankt Petersburg, Russie