Hauptsitz Berliner Sparkasse – Square 1 Campus Adlershof
In Berlin-Johannisthal entsteht mit dem Projekt Square 1 ein zukunftsweisender Bürocampus, unweit von Deutschlands größtem Technologiepark und Medienstandort Adlershof. TCHOBAN VOSS Architekten GmbH gaben mit dem Bauteil B des Projektes den Startschuss für die Campusbebauung. Der zweiteilige, durch Glasbrücken verbundene Gebäudekomplex mit fünf Vollgeschossen wird von der Berliner Sparkasse als Hauptsitz genutzt und befindet sich in unmittelbarer Nähe des denkmalgeschützten Bahnbetriebswerks (Bw) Schöneweide.
Konzept
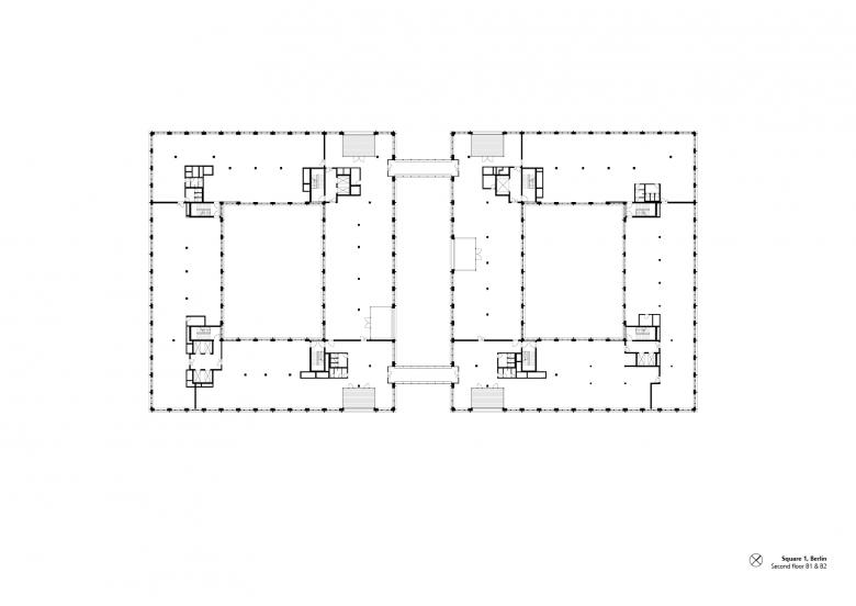
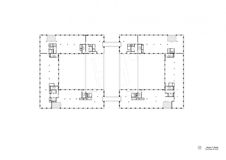
Square 1 B setzt auf ein maximal flexibles Raumkonzept. Je nach Bedarf lassen sich die eigenständigen Gebäudeteile auch für die Nutzung durch einen einzelnen Mieter zusammenschließen. Baukörper B1 im Nordosten und B2 im Südwesten sind über verglaste, zweigeschossige Brücken im zweiten sowie im dritten Obergeschoss miteinander verbunden. Beide Gebäude verfügen über großzügige Dachterrassen im dritten Obergeschoss von jeweils 265 m² und mit intensiver Begrünung, die als vielseitige Open-Air Erholungs-, Kommunikations- und Arbeitsbereiche dienen. Die beiden Carré-Gebäude umschließen darüber hinaus markante, begrünte Innenhöfe mit einer großen Anzahl von Sitzmöglichkeiten. 20 Loggien sind regelmäßig über die Obergeschosse eins bis vier verteilt und schaffen neben einem abwechslungsreichen Fassadenraster zusätzlich Offenheit und weitere Outdoor-Arbeits- und Verweilmöglichkeiten.
Die Vorhangfassade besteht aus weißen, objektspezifisch angefertigten Aluminium-Elementen. Im Erdgeschoss wurde eine geschosshohe Pfosten-Riegel-Fassade verbaut. Vom ersten bis zum dritten Obergeschoss verspringt das Fassadenraster im Wechsel. Optische horizontale und vertikale Konturen verleihen den Fassaden eine klare Gliederung. Großflächige, sechsteilige Panoramafenster im vierten Obergeschoss und Glasbrüstungen an Fenstern, Terrassen und Loggien sorgen für eine offene und moderne Anmutung des Gebäudekomplexes und einen optimalen natürlichen Lichteinfall in die dahinter liegenden Räume. Die Farbigkeit der Fassade, ihre Fensterelemente mit Glasbrüstungen und Glasecken sowie ihre Loggien und die nach oben immer breiter werdende Abfolge von Stützen vermitteln einen bewusst leichten Eindruck. Im Erdgeschoss von B2 befinden sich zwei Durchwegungen zum Innenhof, von denen eine zweigeschossig angelegt ist. Der großzügige zweigeschossige Eingangsbereich in B1 wirkt einladend und gleichzeitig repräsentativ. Er führt zu Konferenz- und Schulungsräumen sowie zu einer internen Kantine. Alle Bereiche des Gebäudekomplexes wurden barrierefrei geplant.
Außenanlagen
Die Außenanlagen des Campus schaffen ein vielfältiges Angebot für Arbeit und Erholung. Die weitläufigen Grünflächen fungieren als verbindendes Element zwischen den Baukörpern und sorgen für Harmonie zwischen Natur und Architektur. Die Innenhöfe sind begrünt und können vielfältig genutzt werden.
Nachhaltigkeit und Technik
Die Gebäude werden mit Fernwärme versorgt und sind mit einer Betonkernaktivierung sowie Heiz- und Kühlsegeln ausgestattet, um den Energieverbrauch so effizient wie möglich zu halten und um ein angenehmes Raumklima zu schaffen. Die Auswahl der Baustoffe, die technischen Ausstattungen sowie das Energiekonzept erfüllen höchste ökologische und ökonomische Standards. Das Projekt erhielt von der Deutschen Gesellschaft für Nachhaltiges Bauen (DGNB) eine Gold Zertifizierung.
- Année
- 2024
- Client
- BAUWERT AG
- Équipe
- Sergei Tchoban, Frederik-Sebastian Scholz, Martin Krebes, René Hoch, Anastasia Kapustina, Charlotte Lennertz, Virginie Mommens, Mareike Pagenstecher, Fabiana Pedretti, Fotios Zaranis
- Generalunternehmer
- Adolf Lupp GmbH + Co KG, Nidda
- Ausführungsplanung
- Bräunlin – Kolb – Schälicke Architekten Ingenieure GmbH, Berlin
- Landschaftsplaner
- Topotek 1 Gesellschaft von Landschaftsarchitekten mbH, Berlin; HOLZWARTH Landschaftsarchitektur, Berlin
- Statik
- Ingenieurbüro Dipl.-Ing. Stefan Ritzer, Pleinfeld
- Haustechnik
- Ruß Ingenieurgesellschaft, Berlin
- EnEV, DGNB, Schallschutz-Nachweis
- Drees & Sommer Advanced Building Technologies GmbH, Berlin
- Glasgeländersystem
- GLASSLINE GmbH, Adelsheim
- Fassadenplanung
- MEDICKE GmbH, Glauchau
- Fassaden- und Fenstersysteme
- HUECK System GmbH & Co. KG, Lüdenscheid
- Sonnenschutz
- WAREMA Renkhoff SE, Marktheidenfeld
- Fotograf
- HG Esch





















