Studentenwohnhaus Sudermanplatz

Sudermanplatz, 50670 Köln, Allemagne
Photo © Dorothea Heiermann

Der Sudermanplatz ist einer der typischen Sternplätze der Kölner Neustadt und einer der letzten großen innerstädtischen Plätze der Stübbenschen Neustadt, der nach der Kriegszerstörung als "Provisorium" liegengeblieben ist. Das Studentenwohnheim schließt diese Lücke und macht über eine Integration der Kompaktstation der GEW den Weg für eine großzügige Neugestaltung dieses wichtigen Platzes frei. Das Bauvorhaben mußte in dem sehr engen Kostenrahmen des sozialen Wohnungsbaus realisiert werden.

Über die Funktion als Sonnenschutz hinaus geben die Schiebeläden den Bewohnern die Möglichkeit sich in der reizvollen aber auch exponierten Lage eines innenstädtischen Marktplatzes abschirmen zu können, ohne den Kontakt zur Außenwelt völlig zu verlieren.

Photo © Dorothea Heiermann
Photo © Dorothea Heiermann
Photo © Dorothea Heiermann
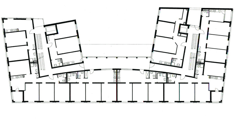
Dessin © Schaller/Theodor
Dessin © Schaller/Theodor
Dessin © Schaller/Thedor
Dessin © Schaller/Theodor
Année
1998

Autres projets de Schaller Architekten Stadtplaner BDA 

3-fach Sporthalle
Eppelheim, Allemagne
Erweiterung Realschule / Neubau Grundschule
Pulheim, Allemagne
Öffentlicher Raum neben der Marktgalerie
Bergisch Gladbach, Allemagne
Tianjin Zhangjiawo New Town Residential Project, 1. BA
Tianjin, China
Eisenbahnversicherungskasse, Büro und Wohnen
Köln, Allemagne