Erweiterung Realschule / Neubau Grundschule
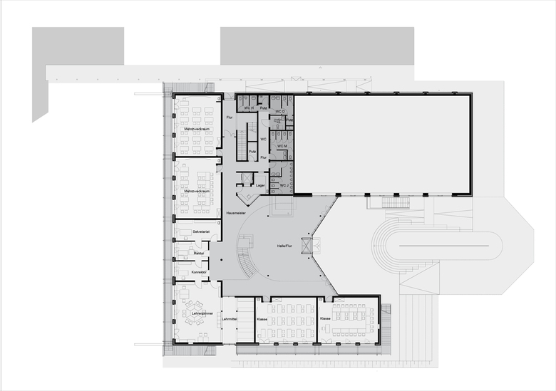
Die Realschule, ein bestehendes Gebäude aus den 60er Jahren, sollte um 5 Klassenräume, eine naturwissenschaftliche Raumgruppe und eine zentrale Halle als Forum und Lichthof erweitert werden. Die Erweiterung, die mit der Halle bis in die Gebäudemitte des Bestandes eingreift, erfolgte bei vollem Schulbetrieb. Der neue Lichthof gibt der Schule mit ihren bisher engen Verkehrsbereichen eine offene, helle Mitte und integriert den Erweiterungsbau in den Bestand. Die eigenständige Architektursprache des 2-geschossigen Neubaus mit geneigter Dachfläche korrespondiert über Material und Farbe mit dem Altbau und verbindet alt und neu zu einer Einheit. Die 2-zügige Grundschule mit integrierter Turnhalle wurde neu gebaut. Turnhalle und 2 Klassentrakte gruppieren sich als Baukörper mit geneigten Pultdächern um eine zentrale gläserne Eingangshalle, die für Schulveranstaltungen genutzt werden kann. Eingangshalle und Schulhof erlauben als räumliche Einheit Festveranstaltungen außen und innen. Ein nachträglich geforderter neuer Ganztag wurde - wegen des beengten Grundstücks - im Untergeschoss mit davor liegender großzügiger Abgrabung realisiert. Beide Schulgebäude wurden mit gleichen Materialien errichtet, roter Ziegel als Vorsatzschale und rote Dachflächen mit Betondachziegeln (Braas novo - Frankfurter Pfanne – ziegelrot), dunkle Metallfenster und verzinkte Laubengänge als Fluchtwege. Die Freiflächen mit Schulgärten und Bäumen integrieren das Gebäudeensemble zu einem Schulcampus.
- Année
- 2007









