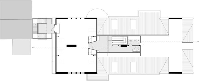
Burgunderschule
Die unter Denkmalschutz stehende Grundschule Burgunderstraße in Neuss aus dem Jahr 1906 hat ca. 250 Schüler. Für den Offenen Ganztag bedurfte es einer Erweiterung bestehend aus einem Mehrzweckraum einschließlich Sanitärräume. Darüber hinaus wurde für den gesamten Altbau ein neues Brandschutzkonzept gefordert. Statt einer Erweiterung auf dem Schulhofgelände haben wir den Ausbau des bis dahin völlig ungenutzten Speicherraums mit einem Volumen von 750m³ vorgeschlagen und den gesamten Altbau brandschutztechnich aufgerüstet.
Der Turnhallen- und WC-Trakt wurde 1959 als Erweiterung der 1906 gebauten Grundschule errichtet. Das Gebäude ist im typischen Stil der damaligen Zeit gehalten und hat mit seinem geschwungenen Pausenhallendach, den bunten schlanken Stahlstützen, den schmalen Stahlfenstern und den abwechselnden Putz- und Ziegelsteinflächen, eine schlichte Eleganz, welche bei der Sanierung erhalten bleiben sollte. Zu diesem Zweck wurden bei den Fenstern graue Altbausanierungsprofile mit schmaler Ansichtsbreite gewählt. Die aussenseitige Ziegelsteinverkleidung wurde erhalten, da sie unter energetischen Gesichtspunkten nicht unbedingt einer Sanierung bedurfte. Die Putzflächen wurden mit einem Wärmedämmputz versehen. Die Flach- und Ziegeldachflächen wurden energetisch komplett saniert.
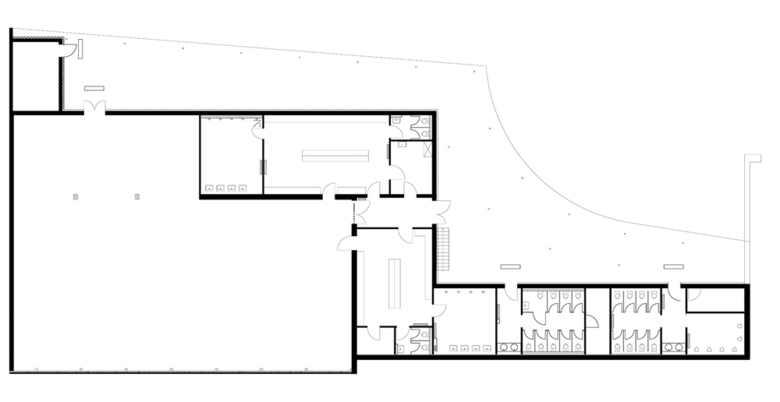
Die Innenräume wurden komplett saniert. Hier wurden Innenputz, Estriche, Boden- und Wandfliesen, Sanitärobjekte und WC- und Dusch- Trennwände erneuert und auf modernen Standart gebracht. In der Turnhalle wurden die in den 1970er Jahren eingebauten Glasbausteinfenster durch eine großflächige Verglasung in Aufteilung der ursprünglichen Orginalfenster ausgetauscht. Die alten Wandheizkörper wurden entfernt und es wurde eine moderne Deckenflächenheizung eingebaut. Die Haustechnik incl. eines Großteils der Leitungsführungen wurde ebenfalls erneuert.
- Année
- 2010





