Acht Lofthäuser Walzmühle

Walzmühle, Frauenfeld, Suisse
Photo © Luca Zanier

Bis 1995 stellte die Aluminiumwarenfabrik Ferdinand Sigg unter anderem ihre bekannten Trinkflaschen in der Walzmühle in Frauenfeld her. Mit dem Erwerb des idyllischen Areals im Sommer 2013 durch HIAG Immobilien wird den Bauten in den kommenden Jahren weiteres Leben eingehaucht und das Walzmühle-Areal weiterentwickelt.

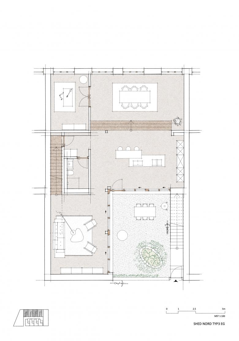
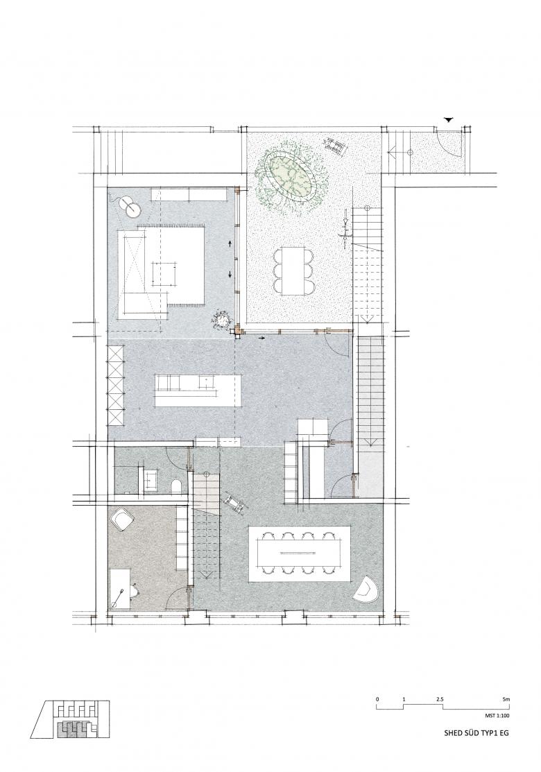
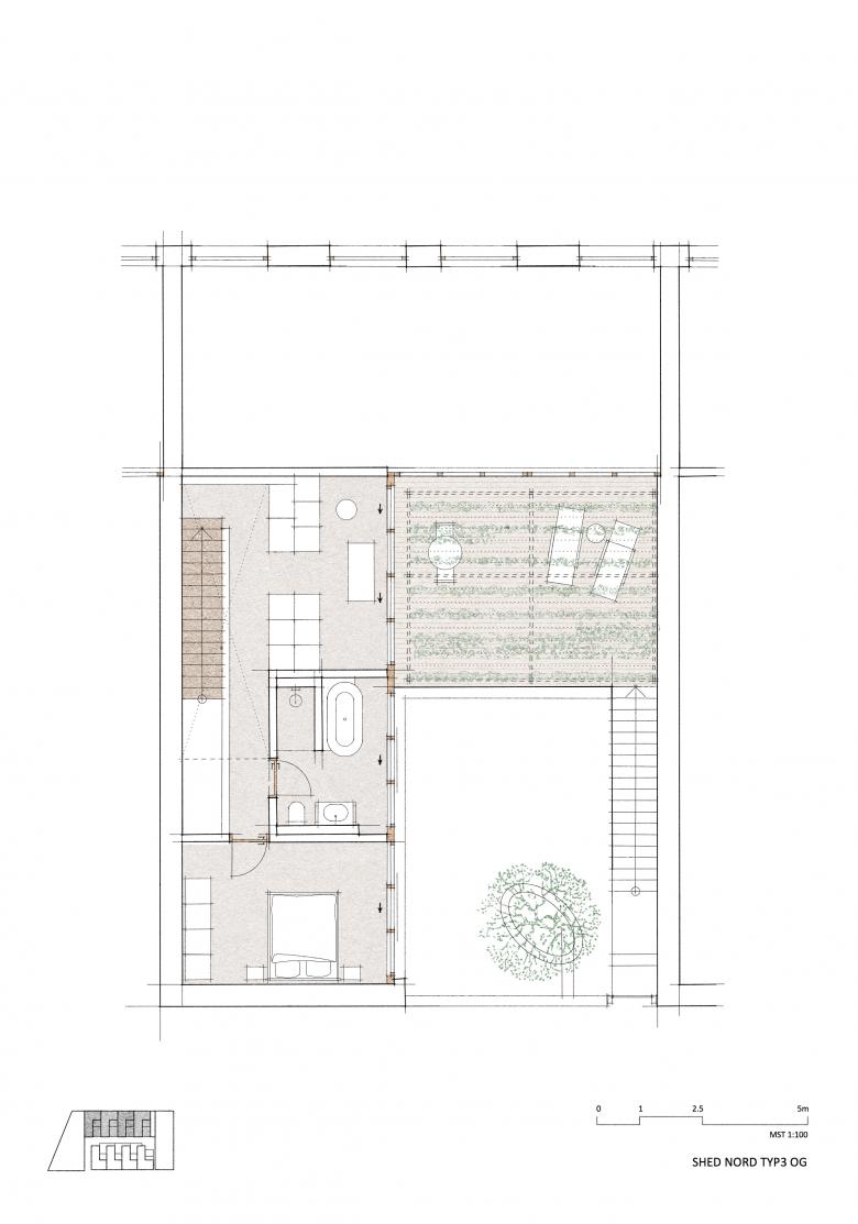
Wir haben die bestehende Shedhalle in acht Lofthäuser umgestaltet. Der gesamte Innenausbau ist die ungewöhnliche Transformation einer Produktionshalle in acht grosszügige Wohnwelten.

Auftragsart: Direktauftrag
Auftraggeber: HIAG Immobilien Schweiz AG

Photo © Luca Zanier
Photo © Luca Zanier
Photo © Luca Zanier
Illustration ©Tom Schmid Visualisierungen
Visualisation © Tom Schmid Visualisierungen
Photo © Luca Zanier
Photo © Luca Zanier
Photo © Luca Zanier
Photo © Luca Zanier
Photo © Luca Zanier
Visualisation © Tom Schmid Visualisierungen
Visualisation © Tom Schmid Visualisierungen
Photo © Luca Zanier
Photo © Luca Zanier
Luca Zanier
Visualisation © Tom Schmid Visualisierungen
Visualisation © Tom Schmid Visualisierungen
Photo © Luca Zanier
Année
2020

Autres projets de KEPENEK 

Musterloft «Spinnerei III»
Windisch, Suisse
«Kafi Linde»
Bachenbülach, Suisse
«Sky Lounge» Schindler Besucherzentrum
Ebikon, Suisse
Konzernleitung Boardroom mit Lounge, Schindler Aufzüge
Ebikon, Suisse
«Record Room» Loft
Horgen, Suisse