Mehrfamilienhaus am Diplomatenpark
Die zwölf Stadthäuser im Diplomatenpark in unmittelbarer Nähe des Tiergartens reihen sich wie Perlen einer Kette entlang der Clara-Wieck-Straße zwischen Landwehrkanal und Tiergarten. Der Diplomatenpark besteht aus insgesamt zehn Häusern und zwei zukünftigen Botschaftsgebäuden, zur Tiergartenstraße gelegen.
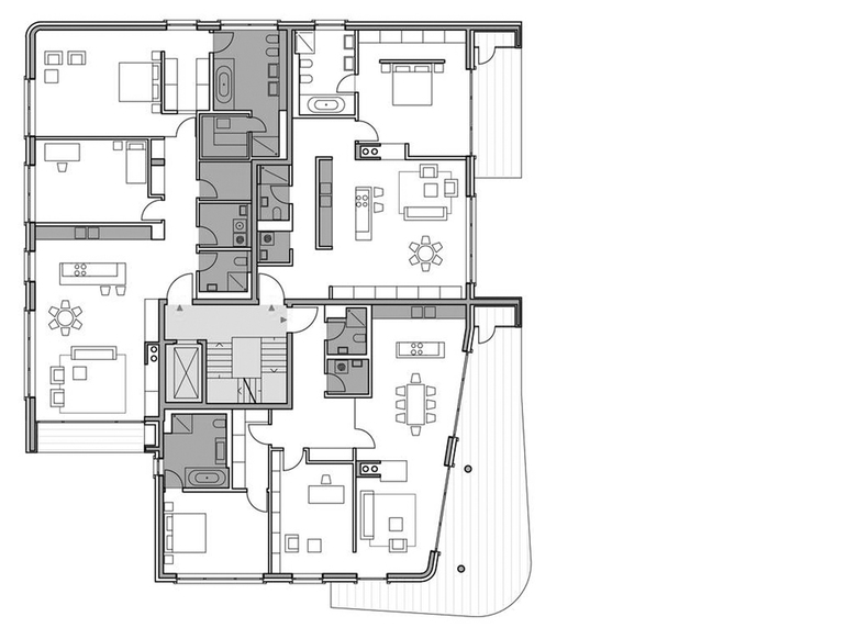
Bei dem Bauvorhaben handelt es sich um einen Neubau als Mehrfamilienhaus mit 11 Wohneinheiten verteilt auf vier Geschosse mit Erdgeschoss. Die obere Etage wird als zurückspringendes Staffelgeschoss ausgebildet. Die Wohnungen sind mit Balkonen und Terrassen ausgestattet.
Das Erdgeschoss ist als Hochparterre konzipiert und liegt etwa 90 cm über dem Straßenniveau. Die Klinkerfassade wurde nicht nur als Sockelverkleidung ausgeführt, sondern ganz bewusst auf das gesamte Erdgeschoss bezogen, um hier eine großzügige und hochwertige Eingangssituation zu erzeugen. Eine ausladende Terrasse im Erdgeschoss bietet einen weiten Blick in den Garten. Die Putzfassade ab dem 1. Obergeschoss wird bestimmt durch auffällige Fensterrahmungen aus dunklem Aluminium, die den Sonnenschutz, Führungsschienen und Fensterbank integrieren. Diese Bauteile betonen die herrschaftlichen Geschosshöhen, gliedern und akzentuieren die Fassade. Eingangsbereich und Austritt auf die Dachterrasse werden als Pfosten-Riegel-Konstruktion ausgeführt, die einen großen Lichteinfall ermöglicht und durch schmale Profile einen eleganten Kontrast zu den Fensterelementen bietet.
Die Geschosse werden über ein großzügiges Treppenhaus mit geräumigem Treppenauge erschlossen. Sichtbezüge zwischen den einzelnen Ebenen und hochwertiger Naturstein als Bodenbelag (Pietra Piasentina) erzeugen einen extravaganten Charakter. Der Aufzug ermöglicht die Anfahrt der Tiefgarage bzw. des Kellergeschosses aus jedem Geschoss.
Die Tiefgarage und der Keller werden in Massivbauweise aus WU-Beton hergestellt und bieten Platz für 19 Pkw. Die Beheizung und die Warmwasseraufbereitung der Anlage erfolgt über eine zentrale Fernwärmestation. Diese befindet sich im Untergeschoss.
Standort
Berlin - Tiergarten
Bauherr
Diamona und Harnisch Development GmbH
Tragwerksplanung
HEG Beratende Ingenieure Berlin GmbH
Haustechnik:
Ingenieurbüro Wichmann GmbH
Bauphase
2010/2011
Fotografie
Dirk Altenkirch
- Année
- 2011
- Project Status
- Construit







