Visualisation © OBRA visual AG

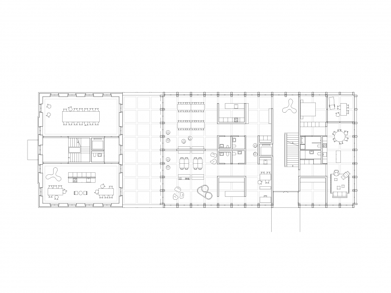
Das Gebiet um den Wettbewerbsperimeter zeichnet sich durch eine heterogene Siedlungsstruktur aus. Die Parzelle wird durch die Abtwilstrasse und die Ambar-Strasse gefasst. Eine wesentliche Projektidee ist der respektvolle Umgang mit dem spätklassizistischen Schulhausbau, welches volumetrisch freigespielt wird. Der prägende Charakter und die Eigenständigkeit dieses erhaltenswerten Gebäudes werden dadurch gestärkt. Der ursprüngliche Schulhausbau wird zurückgebaut und bleibt als Zeitzeuge erhalten. Das Gebäude wird zur Gemeindeverwaltung umgebaut und erhält mit dem zentralen Eingang vom neuen Dorfplatz her die ehemalige markante Adresse zurück. Ein rückwärtiger viergeschossiger Neubau wird mit einem respektvollen Abstand zum Bestand positioniert. Durch die Distanz profitieren beide Gebäude von einer guten Belichtung. Ein eingeschossiger Zwischenbau wird bündig mit den beiden Gebäuden verbunden. Es entsteht ein Ensemble mit einer spannenden Volumenabfolge. Die übrigen Nutzungen werden zur Ambar-Strasse im Neubauvolumen mit einem rückspringenden Eingang vorgesehen. Das Ensemble ordnet sich bezüglich Massstäblichkeit und Volumetrie überzeugend in den städtebaulichen Kontex ein und bildet somit den Auftakt des öffentlichen Gemeinde- und Schulareals.

Dessin © dolmus
© dolmus
© dolmus
© dolmus
© dolmus

Wettbewerb Gemeindehaus, 3. Rang

 Retour à la liste des projets
Année
2022

Autres projets de dolmus architekten 

MFH Grüeneggweg
Hochdorf
Lyss Schulanlage
Wohnüberbauung Spillmatte
Eich, Suisse
Biel Erweiterung Juravorstadt
Biel
Alterssiedlung Stella Maris
Sempach