Informations- Kommunikations- und Medienzentrum mit Mensa der TH
Brandenburgischer Ingenieurpreis 2006 /
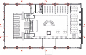
Die vorhandene Gebäudegeometrie der historischen Halle wird durch einen zeitgenössischen Ergänzungsbau, der seiner Nutzung Ausdruck verleiht, fortgesetzt und somit ihre städtebauliche Positionierung zwischen der TFH und der restlichen denkmalgeschützten Industrieanlage als Tor an der Querachse zur ehem. Arbeitersiedlung unterstrichen. Erstmalig erhält die Flucht der langen Giebelfront der Gesamtanlage ihren südlichen Anschluss als städtebauliche Kante.
Die Umnutzung der bestehenden Halle zum IKMZ mit ihrem ungewöhnlich hohen Innenraum wurde durch den sensiblen Einbau sämtlicher Geschossdecken ermöglicht, ohne die vorhandene Gebäudehöhe zu überschreiten und unter Beibehaltung des historisch beabsichtigten Gesamtvolumens. Somit beschränkt sich die Verwendung des Bestandes auf seinen Erhalt bzw. die Ertüchtigung der Außenhülle, ohne die räumliche Eigenschaft des Bauwerkes als Halle zu vernichten.
Verhandlungsverfahren nach VOF
Umbau und Erweiterung einer denkmalgeschützten Lokomotivhalle zu einem Informations-, Kommunikations- und Medienzentrum inkl. Mensa Land Brandenburg
- Année
- 2007




