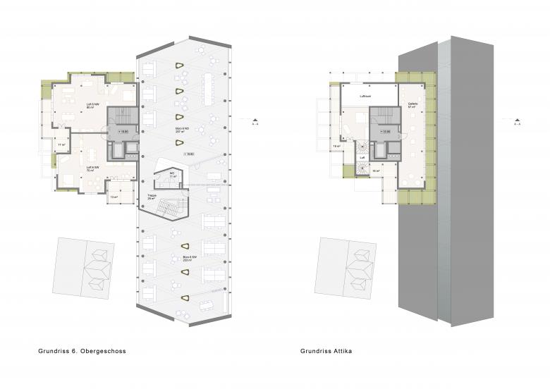
Projektwettbewerb Pilatusplatz
Die Situierung des für Luzern besonderen Standortes am Pilatusplatz ist von ortsbaulichen Bedingungen wie deren Lage an der Nord-Süd-Achse und der Schnittstelle innerstädtischer Hauptverbindungen geprägt.
Der Verzicht auf einen Kopfbau als frontale Sonderform führt zum Lösungsansatz mit einem Hauptgebäude, dass die Bestandesbauten nicht konkurrenziert und zusätzlich mit einem sich hochwindendem, zum Hof orientiertem 35 Meter Turmhaus gesteigert wird.
- Bloque de viviendas
- Edificios de oficinas
- Restaurantes, Bares, Clubes
- Desarrollos Urbanos
- Edificios Comerciales
- Año
- 2020
- Cliente
- AKARA Funds AG
- Equipo
- Sepp Rothenfluh, Hans Ritschard, Gian-A. Sgier, Pia Amstutz









