Raiffeisen Neunkirch
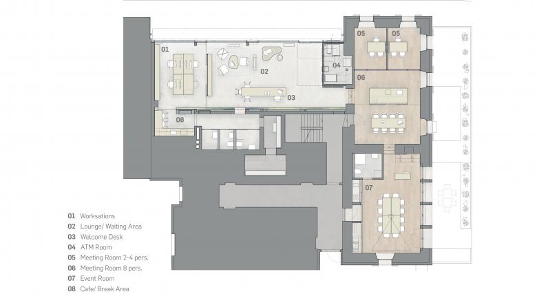
Die neue Geschäftsstelle in Neunkirch, eingebaut in den Räumlichkeiten des ehemaligen Gasthauses Schweizerbund, soll ein zeitgenössisches, flexibles Umfeld für eine moderne Beratungsbank bieten. Die Bank ist in drei Hauptbereiche organisiert. Die Räumlichkeiten an der Grabenstrasse vermitteln das Gesicht der neuen Filiale, sie wirken offen, flexibel und identitätsstiftend. Die angrenzenden Beratungsräume im alten Gasthaus verfolgen hingegen die Idee der ‚Stubenbank’, sie wirken intim, kundennah und gastfreundlich. Der dritte Bereich im südlichen Teil des Gasthauses ist als ‚Add-on’ konzipiert, diese Räumlichkeiten können mit wenig Aufwand als Veranstaltungsraum oder als zukünftige Büroerweiterung genutzt werden.
Die Weinbauthematik wirkt als roter Faden und wird differenziert auf die beiden Hauptbereiche der Bank angewendet. Mit der rautenförmigen Glaswand, dem Betonboden und der Holzdecke wirkt die Kundenhalle hell, öffentlich und modern. Als Verbindung zum Hauptsitz in Schaffhausen wird das Konzept der farbigen Glasschindelwand übernommen und am lokalen Weinbauthema angepasst. Diese hinterleuchtete Konstruktion schafft von der Strasse aus einen farbenfrohen, visuell attraktiven Abschluss. In den höherliegenden Stuben, dem ehemaligen Gasthaus, wechselt das Bodenmaterial zu Parkett, die Materialpalette wird von Holz und hell mineralischen Oberflächen dominiert. Rohe Materialien, Holzoberflächen, Textilien und Möbel sollen dennoch eine gestalterische Kontinuität schaffen und beim Besucher einen einheitlichen Eindruck hinterlassen.
- Año
- 2020
- Project Status
- Construido









