Quartiertreff Gener
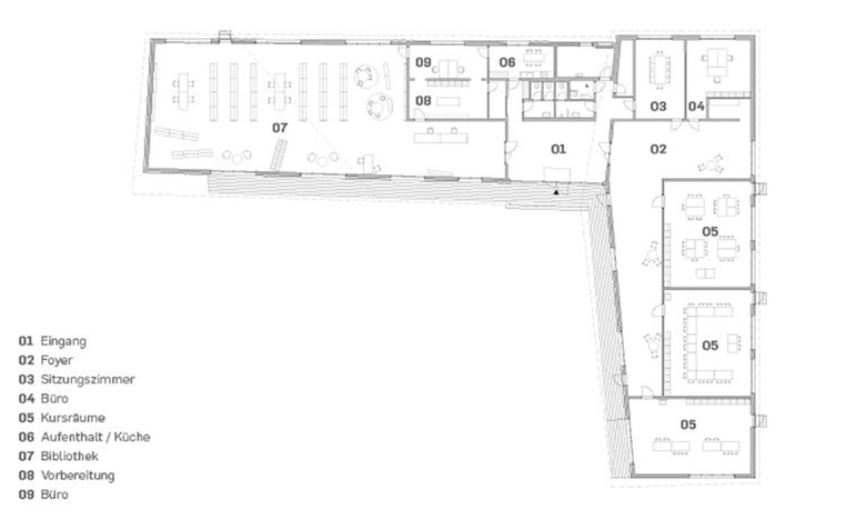
Für das bestehende Gebäude des Freizeitdienstes und die umzuziehende Gemeindebibliothek wird ein L-förmiger Baukörper vorgeschlagen. Der Bau steht auf dem zentral gelegenen, parkartigen Gerenareal in Zollikerberg. Der Neubau öffentlichen Charakters umschliesst zusammen mit dem bestehenden Gebäude ‘Chramschopf’ (Brockenhaus) neu einen gemeinsamen Platz, diese bilden zusammen ein kompaktes Ensemble. Es entsteht ein geselliger Platz im Sinne eines öffentlichen Wohnzimmers mit verschiedenen Sitzmöglichkeiten. Die bestehenden Grünflächen werden grösstmöglich erhalten und aufgewertet.
Der Neubau wurde eingeschossig geplant um den Bezug zum gemeinsamen Platz und dem Aussenraum möglichst intensiv zu gestalten. Wegen des mittelfristigen Bedarfs und der allgemein unsicheren Zukunft des Standortes wurden die Gebäude für eine Lebensdauer von min. 30 Jahren konzipiert. Es wurde eine Holz-Elementbauweise mit hohem Vorfertigungsgrad gewählt, welche eine kurze Bauzeit ermöglicht. Die Materialisierung bevorzugt ökologische, robuste Werkstoffe und nachhaltige konstruktive Lösungen. Nach Aussen fügen sich die Fassade elegant im Kontext ein, nach Innen wirken die Räume frisch und grosszügig.
Ein innovatives Energiekonzept wurde eingesetzt. Die stark gedämmte Gebäudehülle und die mögliche Querlüftung erlauben eine optimale natürliche Belüftung der Räume. Die Energie für die Heizung sowie für eine allfällige Kühlung wird mit einer Erdsonde gewonnen. Das gesamte Projekt ist in Minergie Standard ausgeführt.
Fotos: © Ralph Feiner
- Año
- 2009
- Project Status
- Construido








