Umbau und Erweiterung, Kita "Rhyspatze", Basel

Basel, Switzerland

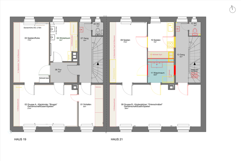
AUSGANGSLAGE
Die bestehende Kindertagesstätte (Kita) an der Alemannengasse in Basel kam aus Platzgründen betrieblich an ihre Grenzen. Zudem standen diverse Unterhaltsarbeiten an. Die Eigentümer entschieden daher, das Nachbargebäude zu erwerben und beauftragte uns, mit dem Umbau sowie der räumlich betrieblichen Optimierung.

LÖSUNGSANSATZ
Eingriffe auf verschiedenen Ebenen:
_ Erweiterung der Kita um die Nachbarliegenschaft und entsprechender räumlicher Neuorganisation: Neupositionierung Waschraum, Zusammenlegung kleiner Zimmer zu einem grossen Spielraum pro Gruppe.
_Schaffung und Optimierung von Stauraum.
_Bauliche Erneuerung und Instandsetzung - Bestandswahrung.
_ Erfüllung von behördlichen Auflagen hinsichtlich Sicherheit (Brandschutz).
_Neues Beleuchtungskonzept (Sicherheit/direkt/indirekt)
_ Grafische Wandgestaltung (Lengsfeld Designkonzepte) als Orientierungshilfe im Gebäude.

Año
2015
Project Status
Construido

Otros proyectos de Lo Verdi Architekten AG ETH/SIA 

Neubau MFH, Ettingen
Ettingen, Switzerland
Neubau MFH, Bottmingen
Bottmingen, Switzerland
Pausendach, St. Johann Schule, Basel
Basel, Switzerland
Umbau I Geschäftshaus, Aeschengraben 9, Basel
Basel, Switzerland
Neubau MFH, Müllheimerstrasse, Basel
Basel, Switzerland