Schule für Kinder mit Autismus
Zwischen Tiroler- und Ingolstädter-Straße, sowie der zukünftigen Trambahntrasse entsteht ein neues Stadtquartier mit vorwiegend sozialen Einrichtungen. Der bereits bestehende Z-Bau, ein etabliertes Kulturzentrum in Nürnberg, schließt das neue Quartier nach Norden ab. Er bildet einen markanten Bezugspunkt für die Neubauten unter Einbeziehung der bestehenden Kindertagesstätte der Rummelsberger Diakonie am westlichen Rand des Baugrundstücks.
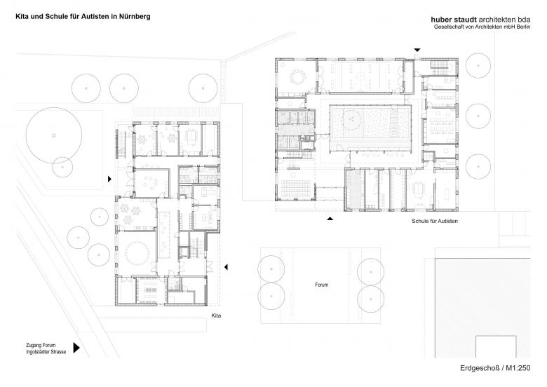
So entsteht ein orthogonales Erschließungssystem, das klare Zuordnungen und einfache Orientierung ermöglicht. Die Kfz-Zufahrten von Süden und Fußgänger und Radfahrer-Zugänge von Osten über den künftigen Rad- und Gehweg werden klar getrennt, die Binnenräume bleiben weitgehend Kfz-frei. Plätze innerhalb des Wegesystems wirken als stadträumliche Akzente. Hier entstehen kommunikative Bereiche, Treffpunkte im neuen Stadtquartier.
Das 2- bis 3-geschossige Gebäude-Ensemble bildet sowohl gestalterisch als auch funktional eine Familie und rahmt einen geschützten Platz: das gemeinschaftlich genutzte Forum. Das Forum schafft einen Ort der Kommunikation und bietet Platz für Veranstaltungen verschiedenster Art. Die versetzte Anordnung der Gebäude sorgt für eine räumliche Fassung der Außenbereiche und verzahnt die Häusergruppen mit der Umgebung.
Der wettergeschützte Eingang der Schule befindet sich gut auffindbar am zentralen Forum. Unmittelbar am Haupteingang öffnen sich die Blicke der Besucher auf den begrünten Innenhof des Schulhauses. Den Übergang zum Patio bildet eine kleine überdachte Terrasse. Die Flure folgen der Fassade zum Innenhof und laden, in helles Licht getaucht, zum Verweilen ein. Jeweils ein Klassen-, Gruppen- und Therapieraum werden zu einem Lerncluster für 7 Schülerinnen und Schüler zusammengefasst. Zum Flur markiert eine farbig gestaltete Nische den Eingang zum Clusterbereich, kleine Blickfenster sorgen für Transparenz im Gebäudeinneren.
- Año
- 2021
- Project Status
- Construido
- Auftraggeber
- Rummelsberger Diakonie e.V.
- Architekt
- huber staudt architekten bda Projekt-Team: Andrii Klymenko, Christian Huber, Joachim Staudt, José Carlos Castro
- Landschaft
- LA.BAR Landschaftsarchitekten bdla
- Grundstück
- ca. 1.2 ha











