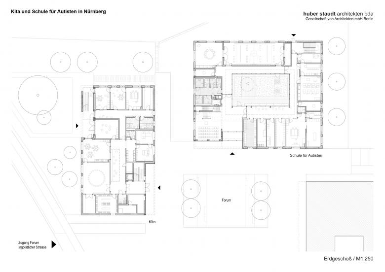
Kita in Nürnberg
Die neue Kindertagesstätte bietet helle, lichtdurchflutete Räume für 2 Gruppen mit jeweils 50 Kindern, die sich auf 2 Ebenen aufteilen. Eine kleine Arkade zum zentralen „Forum“ bildet einen wettergeschützten Eingangsbereich und öffnet sich zu einem kompakten Windfang. Von hier aus bindet eine zweiläufige Treppe das Obergeschoss an. Unmittelbar der Eingangstür gegenüberliegend befindet sich der Eingang zu den Gruppenräumen im Erdgeschoss.
Eine kompakte zweigeschossige Halle bildet den räumlichen Mittelpunkt des Gebäudes. Über ein Oberlicht dringt Tageslicht und frische Luft in die Mitte der beiden Ebenen. Der Mehrzweckraum, sowie die Gruppenhaupträume orientieren sich nach Süden zum Garten und die Gruppennebenräume nach Westen. Dienende Räume, wie die Personalräume, die Küche und das WC orientieren sich nach Norden. Zur Gartenseite hin sichert eine Außentreppe, die auch die Funktion der Fluchttreppe übernimmt, die schnelle Verbindung aus dem Obergeschoss in den großzügigen Garten der neuen KiTa.
Die Kindertagesstätte entsteht als Massivbau mit einer Lochfassade und tragenden Flurwänden. Ein 49 cm starkes Mauerwerk aus Poroton-Steinen bildet die tragenden Außenwände. Ein Kammputz in silbergrau bildet die Wandoberflächen. Die tragenden Innenwände werden aus 24cm und die nichttragenden Innenwände aus 17,5cm starken Porotonsteinen gemauert und mit einem Innenputz versehen. Ein weiterer Vorteil der massiven Bauweise ist vor allem die Speicherfähigkeit der Wände, die insbesondere beim sommerlichen Wärmeschutz eine große Rolle bei der Kühlung des Gebäudes spielt. Im Erdgeschoss ist der eingeschnittenen Eingangsbereiche mit einer Holzverkleidung aus Lärchenholzlamellen akzentuiert. Die Fenster werden in Holz-Alu-Konstruktion gefertigt. Ein außenliegender Sonnenschutz schützt die Unterrichträume vor sommerlicher Überhitzung.
Im Gebäude dominieren die natürlichen Farben der eingesetzten Materialien, helle Putzflächen, Holz und farbiger Linoleum, sowie einzelne farbige Akzente.
- Año
- 2021
- Project Status
- Construido
- Auftraggeber
- WBG KOMMUNAL GmbH
- Grundstück
- ca. 1,2 ha
- Architekt
- huber staudt architekten bda Projekt-Team: Andrii Klymenko, Christian Huber, Joachim Staudt, José Carlos Castro
- Landschaftsarchitekt
- LA.BAR Landschaftsarchitekten bdla








