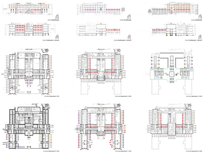
ETH Zürich, ehemaliges Chemiegebäude

Institutsgebäude von A.F. Bluntschli und G. Lasius (1884 – 1886) erstellt,
Erweiterung Durch O.R. Salvisberg (1937).
Unter kantonalem Denkmalschutz.
Strategiefindung für die Erneuerung der verschiedenartigen Fenstern und Türen. Bauarbeiten unter Betrieb während 2 Jahren.

Año
2018
Cliente
ETH Immobilien

Otros proyectos de Felix Huber Architekten 

Mehrfamilienhaus Kirchgasse, Zustandsanalyse
Wohn- und Geschäftshaus
Zürich-Seefeld, Switzerland
ETH Zürich, Labor für Tierhaltung
Zürich, Switzerland
ETH Zürich, Forst- und Landwirtschaftsgebäude
Zürich, Switzerland
Geschäftshaus SCREEN
Urdorf, Switzerland