Hotel Ambassade. Interiorismo de zonas públicas, biblioteca y brasserie.
El Hotel Ambassade reside en Amsterdam desde 1953, en los canales Herengracht y Singel, ocupando un conjunto de casas del canal del siglo XVII. A lo largo de estos años el hotel ha experimentado algunas mejoras siempre enfocadas a la idea de un hotel íntimo y confortable, un lugar donde el huésped se sienta como en casa.
En 2014 los propietarios del hotel encargaron a Cruz y Ortiz Arquitectos el proyecto de renovación y ampliación de las zonas comunes. Antonio Cruz y Antonio Ortiz son clientes habituales del hotel desde hace más de 20 años. Los trabajos de renovación y ampliación tenían tres puntos de partida:
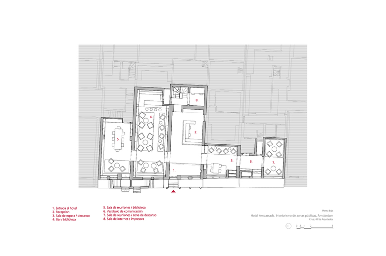
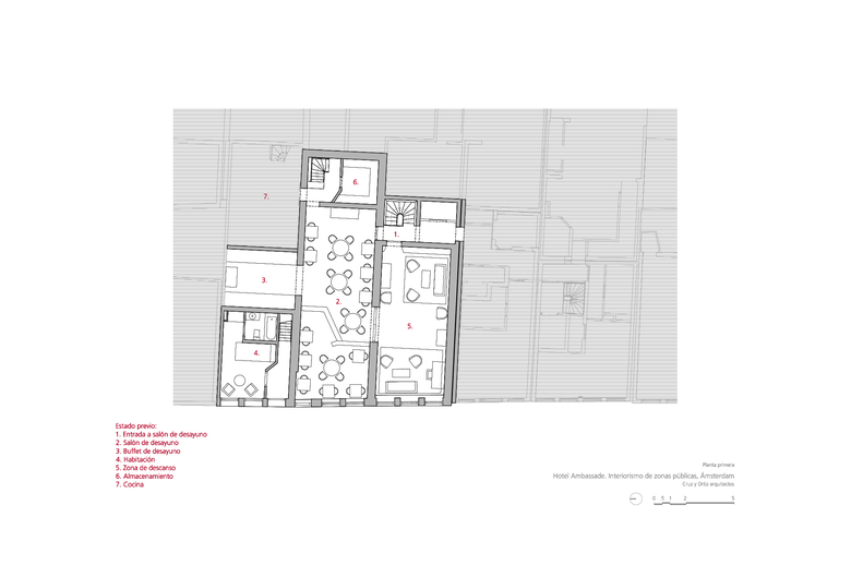
El primero de todos, que la muy relevante colección Cobra, propiedad del hotel, estuviera más accesible para los clientes. En segundo lugar, el Hotel Ambassade es visitado muy a menudo por escritores que suelen donar al hotel un ejemplar original firmado por ellos. Por este motivo, el hotel cuenta con una biblioteca de más de 4000 libros únicos. Por último, la creación de un lounge bar, lo suficientemente pequeño como crear un ambiente íntimo y una nueva brasserie (un nuevo restaurante) en la primera planta. Teniendo en cuenta la situación anterior, una de las primeras medidas a tomar era reorganizar los espacios. Algunas de las características especiales de las casas se habían perdido debido a modificaciones anteriores en el edificio, dando como resultado un espacio algo amorfo. La suma de decisiones inconexas tomadas a lo largo de los años ha supuesto una pérdida en la coherencia de la estructura original de las casas en el canal. Por lo tanto el primer paso era dotar a los espacios de geometría y claridad. La sucesión de pasajes alineados contemplados en la propuesta de diseño facilita el tránsito de una casa a otra, como un paseo a través de secuencias de espacios en los que uno puede reconocer de nuevo las casas originales. Al recuperar la orientación espacial, las zonas públicas del hotel se perciben de una manera más sosegada.
- Año
- 2015
- Cliente
- Ambassade Hotel






























