Grund- und Vorschule mit Sporteinrichtungen
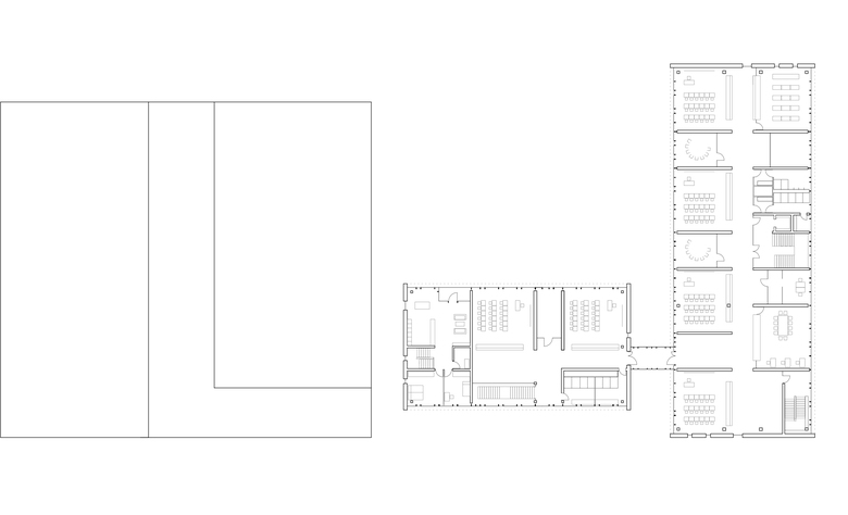
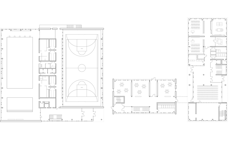
Im neuen Stadtquartier Nonnewisen mit circa 1500 Einwohnern ist für insgesamt 270 Vor- und Grundschüler ein Schulkomplex einschließlich Schwimm- und Sporthalle entstanden. Ein neu angelegter öffentlicher Platz definiert die Schnittstelle zur benachbarten Wohnbebauung. Von hier aus wird das Schulgebäude erschlossen, die Sporteinrichtungen öffnen sich auf der Südseite des Komplexes zum angrenzenden Park.
Die einzelnen Baukörper sind entsprechend ihrer unterschiedlichen Funktion auch differenziert ausgebildet. Auf diese Weise erhält die relativ große Baumasse eine Maßstäblichkeit, die den Kindern Orientierung gibt. Große Glasflächen im Wechsel mit geschlossenen Fassadenteilen aus Betonwerkstein rhythmisieren die Gebäudeteile und fassen den Schul- und Sportbereich gestalterisch zusammen.
Im Inneren sind die Klassenräume zur Flurzone nur durch raumbildende Möbel getrennt. Dieses Raumkonzept soll pädagogisch wirksam werden und Rücksicht und gegenseitige Anteilnahme über die Klassengemeinschaft hinaus fördern und stärken.
Bauherr
Ville d’Esch-sur-Alzette
Objektplanung Gebäude
Auer+Weber+Assoziierte
Stuttgart
Partnerbüro
Atelier d'Architecture BENG
Esch-sur-Alzette
Tragwerksplanung
Schroeder et Associés
Luxembourg
Freianlagen
mit Gesswein Henkel + Partner
Ostfildern
Kunst am Bau
Sabine Heine
Rotterdam (NL)
Bruttogeschossfläche
9.200 qm
Nutzfläche
5.045 qm
- Año
- 2011











