Therme Lindau
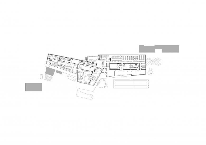
Neubau eines Sport- und Familienbades mit Thermen- und Saunalandschaft am See: Sanft in die Landschaft mit altem Baumbestand eingebettet liegt die Therme Lindau direkt am Bodenseeufer. Die Architektursprache leitet sich aus dem umgebenden Naturraum ab: Felsplatten, Steine und Vegetation prägen den Entwurf, der sich wie eine Landschaft erkunden lässt. Von außen klar und ruhig gestaltet, ist der Baukörper im Innenraum von vielfältigen Raumszenarien mit unterschiedlichen Funktionen geprägt. Das langgestreckte und horizontal geschichtete Thermengebäude ist formal an der Uferkante ausgerichtet und liegt wie eine Steinscholle zurückhaltend im Grünen. Im Erdgeschoss ist die Therme ähnlich einer Landschaft ausgebildet, die von einzelnen Felsblöcken durchbrochen wird. In diesen Blöcken befinden sich die unterschiedlichen Erlebnisbereiche und laden zum Erkunden ein. Darüber liegt die zweite Ebene, geschichtet wie eine Steinscholle am See, sanft in die Landschaft zwischen Eichwald und Bodensee eingebettet. Thematisch umfasst die Therme Lindau drei unterschiedliche Bereiche: Ein Familien- und Sportbad, einen Thermen- und Wellnessbereich sowie eine großzügige Saunalandschaft mit insgesamt zehn Saunen im Innen- und Außenraum. Hinzu kommen gastronomische Einrichtungen und ein Fitnessbereich. Nach Süden öffnet sich die Therme zum Seeufer und bietet eine fantastische Aussicht auf den Bodensee und die Bergwelt. Eingangsbereich und Umkleidetrakt bilden das Rückgrat nach Norden. Die Badeebene im Innenraum ist ähnlich einer Landschaft gestaltet: Die Becken und Wellnessbereiche sind teils in expressiv geformten Volumen untergebracht. Sie gliedern das Erdgeschoss und bilden spannende Raumszenarien. Lufträume verbinden die Ebenen miteinander, bilden Blickbezüge, weiten das Gebäude nach oben und lassen Tageslicht ins Gebäude fallen. Von allen Seiten ist der Bezug zum Außenraum spürbar und das wechselvolle Spiel von Licht und Schatten verleiht den Räumen eine emotionale Wirkung.
- Año
- 2021
- Cliente
- Bäderbetriebe Lindau und Therme Lindau GmbH (schauer & co. GmbH)
- Equipo
- Daniel Bayer, Andreas Ditschuneit, Pinar Eren, Ida Ertelt, Christiane Hofmann, Marcel Kipping, Mohamed Mansour, Peter Meschendörfer, Alain Vargas, Vesela Velikova, Sheelah Walter, Alena Zgorskaya
- Investor, Betreiber + Generalübernehmer
- schauer & co. GmbH
- Totalunternehmer + Bauleitung Rohbau
- Georg Reisch GmbH & Co. KG
- Ausschreibung + Bauleitung
- vdo Architekten GmbH



















