Leo & Alex – Bornitzstraße
Die beiden Büroneubauten LEO & ALEX entstanden auf zwei unbebauten Grundstücken an der Bornitzstraße im Berliner Bezirk Lichtenberg. Namenspaten der Straße wie auch beider Gebäude des Projektes sind der Arzt und Autor Leopold Bornitz sowie sein Bruder, der Gemeindepfarrer Alexander Bornitz. Zwischen den beiden Volumen befinden sich die gemeinnützigen Lichtenberger Werkstätten, die zur Stiftung Rehabilitationszentrum Berlin-Ost gehören. Im Westen wird das Bürogebäude „LEO“ durch das denkmalgeschützte, ehemalige Werkstattgebäude der Konsumgenossenschaft Berlin begrenzt, erbaut 1926-27 von Otto Wettstein. Rückwärtig befindet sich ein weiteres Baudenkmal, die Industriebauten Josef-Orlopp-Straße 32/54 und östlich von „ALEX“ das 1997 erbaute Bürogebäude „The Wave“.
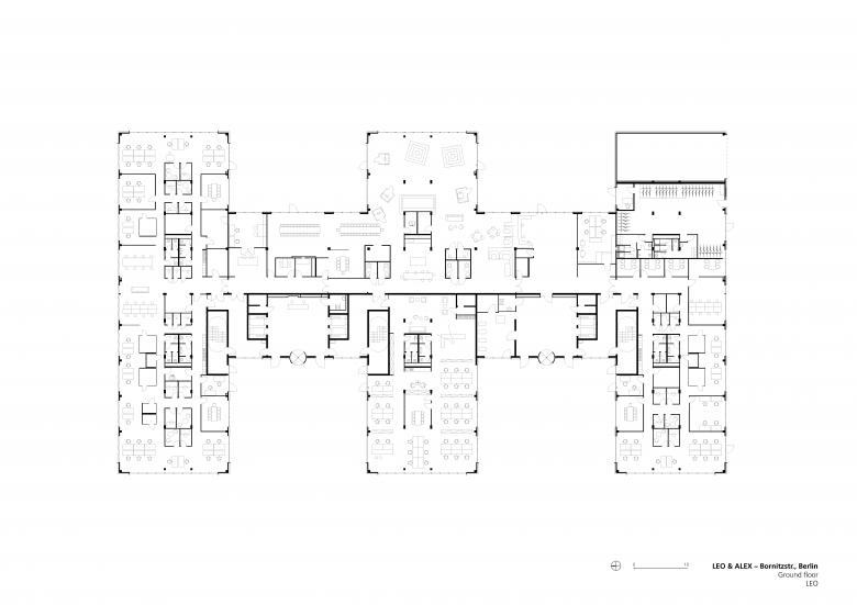
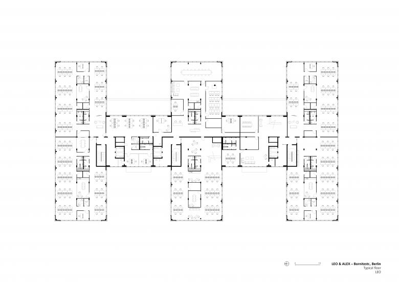
Die Kubatur des Gebäudes ,,LEO‘‘ besteht aus drei querstehenden, dreigeschossigen Querriegeln, die ein siebengeschossiger Gebäudeteil in Längsrichtung verbindet. Drei unabhängige Treppenhäuser verbinden die verschiedenen Ebenen und sind von den Haupteingangsbereichen im Erdgeschoss zu erreichen. Jedem Treppenhaus angegliedert ist eine Aufzugsanlage mit zwei Aufzügen. Die Mietbereiche sind flexibel ausgelegt, wodurch sowohl eine Zellenbüroaufteilung als auch eine Open-Space-Variante möglich ist. Das Gebäude ,,ALEX‘‘ besteht aus einem siebengeschossigen Riegel, von dem drei gleichhohe Querriegel in Richtung Westen abgehen.
Zwischen den freistehenden Gebäudeteilen öffnen sich begrünte Innenhöfe. Alle Dächer sind als extensive Gründächer vorgesehen. Im Bereich der Staffelgeschosse sind zudem Dachterrassen als aufgeständerte Konstruktion angebracht, die jedoch gegenüber der Nutzungseinheit nicht stufenlos zugänglich sind. Insgesamt ergibt sich aus den zwei Gebäuden eine Brutto-Grundfläche von ca. 50.000 m².
Die Außenfassade von Gebäude ,,LEO‘‘ wird durch eine grau-beige melierte Riemchenfassade gegliedert. Die Stützen zwischen den Fensterbändern wurden als reliefierte Blechverkleidung geplant. Im Erdgeschoss wurden geschlossene Brüstungselemente als Sichtschutz vor die bodentiefen Fensterelemente sowie ein außenliegender Sonnenschutz angebracht. Bei dem Gebäude ,,ALEX‘‘ besteht die markante Fassade aus rotem Backstein. Sie knüpft architektonisch an die historische Nachbarbebauung an und ist in Kubatur, Farbigkeit und Materialität eine Referenz an den Industriestandort Lichtenberg. Die Geschosse sind durch horizontale Fensterbänder gegliedert, die stellenweise unterbrochen sind und somit der Fassade eine abwechslungsreiche Optik verleihen. Die zweigeschossigen Eingangsbereiche der beiden Gebäude sind durch eine Pfosten-Riegel-Fassade mit Vordach akzentuiert und ermöglichen durch je eine Karusselltür, die von normalen Türen flankiert wird, den Zugang zu den Bürogebäuden.
In den zwei Tiefgaragen von ,,LEO & ALEX‘‘ sind zusammen 291 PKW-Tiefgaragenstellplätzen vorhanden, von denen jeweils 10 bis 50 bei Bedarf als E-Mobility-Stellplätze genutzt werden können. Die Aufzugskerne verbinden die Tiefgarage direkt mit den sieben Büroetagen. Zusätzliche stehen in den Außenanlagen weitere 47 Parkplätze, auch zum Teil auf Elektromobilität ausgerichtet, zur Verfügung.
- Jahr
- 2023
- Project Status
- Gebaut
- Bauherrschaft
- Quantum AG
- Team
- Martin Krebes, Jan Frechen, Juan Durán Calero, Merle Kleinschumacher, Mareike Pagenstecher





































