Casa degli scout

Holzgasse 5, 8810 Horgen, Schweiz
Foto © Benjamin Muschg Ralph Feiner

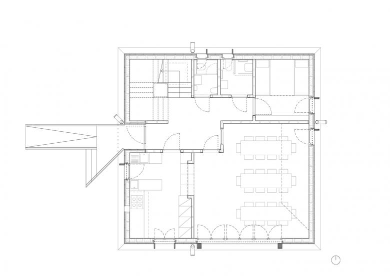
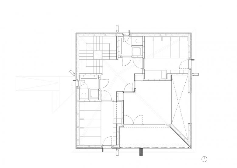
Casa di vacanze per scout realizzata con una struttura in legno portante che poggia su una piattaforma in beton.

Foto © Benjamin Muschg Ralph Feiner
Foto © Benjamin Muschg Ralph Feiner
Foto © Benjamin Muschg Ralph Feiner
Foto © Benjamin Muschg Ralph Feiner
Foto © Benjamin Muschg Ralph Feiner
Foto © Benjamin Muschg Ralph Feiner
Foto © Benjamin Muschg Ralph Feiner
Foto © Benjamin Muschg Ralph Feiner
Foto © Benjamin Muschg Ralph Feiner
Foto © Benjamin Muschg Ralph Feiner
Foto © Benjamin Muschg Ralph Feiner
Jahr
2016

Andere Projekte von studio we architettura 

Arsenale
Teufen, Schweiz
L'Uomo che Piantava Gli Alberi
Lugano, Schweiz
Le Officine – Un Nuovo Quartiere per Bellinzona
Bellinzona, Schweiz
Casa Di Paola Extension
Cadro, Schweiz
Scuola d'infanzia
Tenero, Schweiz