Primarschulhaus Linde, Birmensdorf
Bauherrschaft: Primarschulpflege Birmensdorf.
Wettbewerb 2001, Ausführung 2002 -2004
Anlagekosten BKP 1-9: Fr. 7'300'000
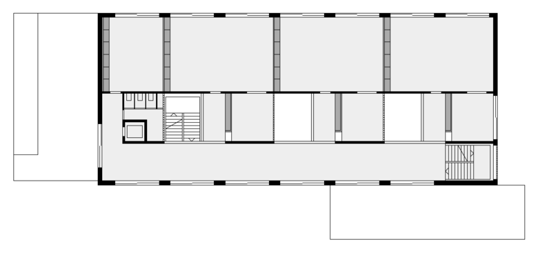
Erweiterung einer Primarschulanlage um einen Neubautrakt mit neun Klassenzimmern. Das Gebäude ist so gesetzt, dass zwischen dem bestehenden Schulhaus und dem Neubau ein räumlich klar gefasster Schulhausplatz entsteht.
Der Baukörper ist in drei parallele Raumschichten gegliedert. Im Zentrum des Grundrisses sind zwischen Klassenzimmern und Korridor die Gruppenräume eingespannt, über drei Lichthöfe mit Tageslicht versehen. Sie sind sowohl vom Klassenzimmer als auch vom Korridor aus zugänglich und gewähren so maximale Nutzungsflexibilität.
Die Fassaden sind vom immer gleichen, grossformatigen Schiebefenster bestimmt. Die Fassadenfront im Erdgeschoss kann im Sommer auf der ganzen Länge geöffnet werden, so dass die Pausenhalle im Erdgeschoss und der Schulhausplatz nahtlos ineinander verschmelzen.
- Jahr
- 2004









