Durchgangsheim Riesbach, Zürich
Bauherrschaft: AHB Stadt Zürich
Planerwahl 1997, Ausführung 1999
Anlagekosten BKP 1-9: Fr. 2'500'000
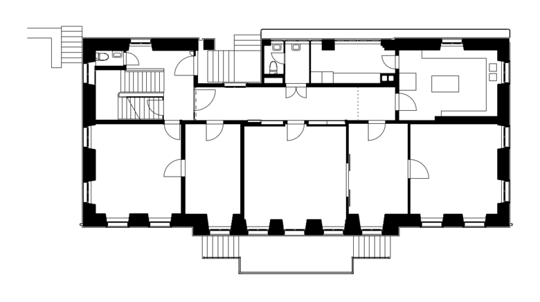
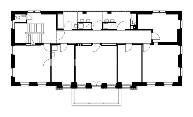
Die 1838 erbaute klassizistische Villa wurde bereits 1945 zu einem Mädchenheim umgebaut. Dabei wurden einige, das ursprüngliche Raumkonzept zum Teil stark verunklärende Eingriffe vorgenommen. Mit der anstehenden Gesamtsanierung eröffnete sich die Chance einer wenigstens teilweisen Wiedergutmachung.
Die wichtigste Massnahme im Obergeschoss war das Konzentrieren aller Nasszellen in der ehemaligen Verandaschicht. Das Erlebnis einer schmalen, durchgehenden Raumschicht konnte durch die opak verglasten Trennwände zwischen den Bädern wiederhergestellt
werden.
Der ursprüngliche, 4.5 m hohe Keller wurde von früher vorgenommenen Einbauten befreit und mit Galerieboden und Treppen in Streckmetall zu einem eindrücklichen Mehrzweckraum umgenutzt.
- Jahr
- 1999









