„open mobility lab" Ostfalia Hochschule für angewandte Wissenschaften

Salzdahlumerstraße 46/48, 38302 Wolfenbüttel, Deutschland
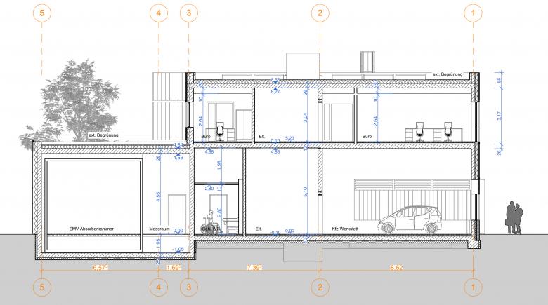
Zeichnung © S+S

Gegenstand der Planung war die Konzeption eines „open mobility lab“ für die Ostfalia, Hochschule für angewandte Wissenschaften am Standort Wolfenbüttel.

Bei dem neu zu errichtenden Gebäude handelt es sich um eine Forschungsstätte für zukünftige Mobilitätskonzepte sowie ein separat zu nutzendes physikalisches Großlabor für elektromagnetische Verträglichkeit (EMV-Absorberkammer).
Die neu zu errichtenden Labor-, Werkstatt- und Büroflächen dienen anwendungsorientierten Forschungsprojekten mit den Schwerpunkten:

- Intelligente Systeme für Energie und Mobilität im Fahrzeugbau
- Kunststoffe und Materialwissenschaften
- Erneuerbare Energien und Ressourcenefffizienz

Die dem Entwurf zugrundeliegende Gebäudeform folgt den beengten Bedingungen des Grundstücks. Zu erhaltende Zufahrtsstrassen bzw. Fußwege bestimmen die Baufluchten des Gebäudes im Osten, Norden und Westen. 
Der Hauptzugang erfolgt im Osten aus der Richtung des Gebäude L. Der Neubau bildet durch das zweigeschossige Hauptgebäude und die eingeschossige EMV-Absorberkammer im Zusammenspiel mit Gebäude L einen angenehm proportionierten Vorplatz zum Hauptzugang.

Über das Foyer mit Haupttreppenhaus und Aufzug wird im EG die Fahrzeughalle mit KFZ-Werkstatt, EMV-Kammer und Nebenräumen erschlossen, im OG sind über einen innenliegenden Flur verschiedene Büros und Labornutzungen erschlossen. Über eine aussenliegende Stahltreppe an der Südfassade des Gebäudes wird der zweite Rettungsweg aus dem OG sichergestellt.

Zeichnung © S+S
Zeichnung © S+S
Foto © Uwe Brodmann Fotografie
Foto © Uwe Brodmann Fotografie
Foto © Uwe Brodmann Fotografie
Jahr
2021
Bauherrschaft
Staatliches Baumanagement Braunschweig
Landschaftsarchitektur
Planungsbüro Hoffmann, Braunschweig

Andere Projekte von Schneider + Sendelbach 

Sanierung und Erweiterung der Grundschule Heidberg und Einrichtung zum Ganztagsbetrieb
Braunschweig, Deutschland
BMW Training Center Shanghai
Shanghai, China
Studentisches Wohnen am Kläperberg
Hannover, Deutschland
Troya Müzesi - Museum für Troja
Çanakkale, Türkei
Landesrechnungshof des Landes Niedersachsens
Hildesheim, Deutschland