Neubau Turnhalle/Aula Hagen
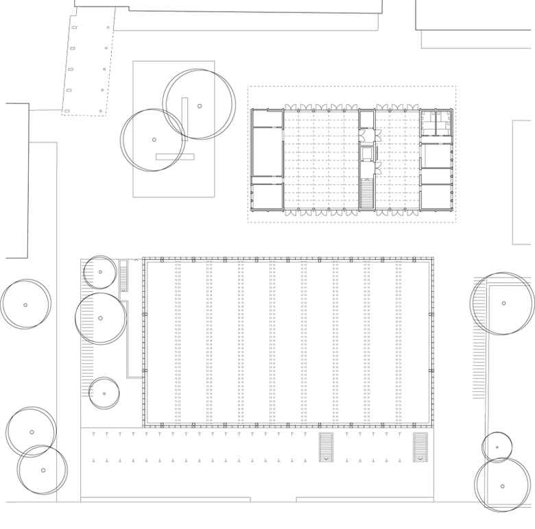
Die Schulanlage Hagen liegt im Zentrum von Altdorf und wird seitlich von der Bahnhof- und der Seedorferstrasse begrenzt. Der heutige Schulcampus ist ein Ensemble von dicht aneinandergereihten Einzelgebäuden verschiedener Dekaden, die einen heterogen zusammengehaltenen Aussenraum bilden. Die Erweiterungen der Klassentrakte im Norden haben dazu geführt, dass die Schulanlage ihren Schwerpunkt verloren hat.
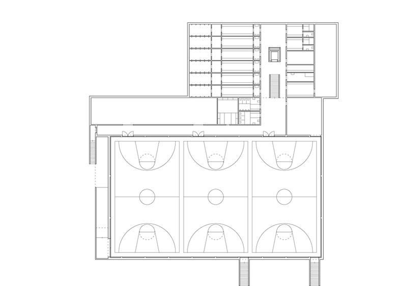
Die neue Dreifachturnhalle ist als feingliedrige, leuchtende Laterne entlang der Bahnhofstrasse gesetzt. Sie wird in das Erdreich versenkt, übernimmt so die Traufhöhe der benachbarten Häuser und reiht sich in das bestehende Strassenbild ein. Zusammen mit den Häusern der Bahnhofstrasse und den bestehenden Schulgebäuden formt die Dreifachturnhalle einen grosszügigen, zentralen Schulhof. In dessen Mitte sitzt das pavillonartige Foyergebäude und gibt dem Schulcampus räumlich wie programmatisch eine der Anlage angemessenes Zentrum.
Das als Insel vorgeschlagene Foyergebäude lässt "einen" grosszügigen Pausenhof entstehen, gliedert unterschiedlich dichte Bereiche mit grosser Aufenthaltsqualität und bewirk differenzierte Raumbeziehungen. Die Zugänge zum Foyer sind zentral gelegen und gut auffindbar, sowohl von den Schulgebäuden als auch vom öffentlichen Raum. Das Foyer erschliesst gleichzeitig Aula und Dreifachturnhalle und kann durch die räumliche Nähe für verschiedene Nutzungen in Kombination mit den Aussenräumen unterteilt und vielfältig genutzt werden. Damit ergeben sich kurze Wege wie auch eine optimale Orientierung mittels spannungsvollen Sichtbezügen für Besucher oder Sportler.
Beide Bauten sind geprägt durch vertikal gereihte Konstruktionshölzer über dem Betonsockel, welche die gläsernen Fassadenteile, wie auch die mit Kupferblech verkleideten Füllungen ordnen und zusammen mit den Sonnenschutzmarkisen vor dem Tragwerk eine lebendige Tiefe der Gebäudehülle erzeugen. Die Basis für einen festlichen Ausdruck im Inneren, bildet eine konsequente Materialästhetik der hölzernen Bauteile im Wechselspiel mit rohem Beton und ornamental vorgeschlagenen Farbakzenten.
- Jahr
- 2011
- Project Status
- Design
- Programm
- Dreifachsporthalle, Aula mit Foyer
- Bauherrschaft
- Gemeinde Altdorf
- Architekten
- Nik Biedermann / Roman Singer / Rémy Baenziger
- Rauminhalt SIA 416
- 24‘750m3
- Gebäudekosten BKP 2
- ca. Fr. 7.5 Mio.
- Offener Projektwettbewerb: 2011
- 4. Rang





